Уважаемые покупатели, предлагаем рассмотреть вариант покупки однокомнатной квартиры в городке Нефтяников Советского района города Омска.
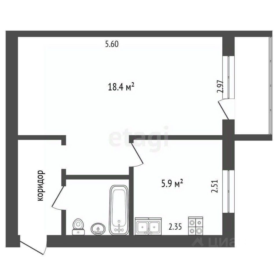
Квартира расположена на четвертом этаже четырехэтажного кирпичного дома 1959 года постройки. Общая площадь квартиры 30,3 кв.м., площадь кухни 5,9 кв.м., площадь комнаты 18.4 кв.м. Квартира теплая, солнечная, не угловая. В квартире сделан косметический ремонт. Установлены окна ПВХ. Есть балкон, застеклен.
Развитая инфраструктура: в шаговой доступности остановка общественного транспорта ''ОМЦ Химик''. Детский сад 162, 312, 328. Средняя школа 63. Сети супермаркетов ''Ярче'', ''Пятерочка'', ''Магнит'', аптеки и все, что нужно для комфортной жизни!
Код пользователя: 78883
Номер в базе: 10332712



















































