Арт. 107336301 СЕМЕЙНАЯ ИПОТЕКА 6 % ГОДОВЫХ!
ЦЕЛЬНОКИРПИЧНЫЙ ДОМ 2025 ГОДА, СДАН!
ЕДИНАЯ ЦЕНА С ЗАСТРОЙЩИКОМ БЕЗ КОМИССИЙ!
ПОКАЖЕМ И БЕСПЛАТНО ЗАБРОНИРУЕМ, ЗВОНИТЕ!
Компания ''Ледон'' предлагает к продаже 3-комнатную квартиру в новом кирпичном доме в центре поселка Привокзальный.
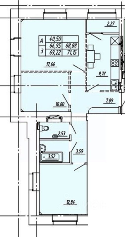
Квартира свободной планировки, окна на 3 стороны света, есть теплая лоджия. Рекомендуемая планировка включает в себя три изолированные комнаты и кухню. Санузел и ванная раздельные.
Квартира сдается в предчистовой отделке. Стены оштукатурены, выровнены, проведена первичная шпатлевка стен. Выполнена стяжка пола и гидроизоляция пола в ванной/санузле. Окна из ПВХ-профиля с откосами и приточной вентиляцией. Установлены современные радиаторы отопления. Электричество заведено до электрощитка, установлены счетчики горячей и холодной воды. В ванной хромированный полотенцесушитепь. Горизонтальная разводка отопления дает эффект теплого пола в отопительный сезон.
Дом цельнокирпичный, толщина наружной стены 3 кирпича (77 см). В доме 2 лифта, грузовой и пассажирский. На первом этаже подъездов оборудована колясочная. На придомовой территории детская и спортивная площадка, подземный паркинг на 37 машино-мест, также оборудована просторная бесплатная парковка.
Дом находится в районе с уже сложившейся инфраструктурой. В 7-8 минутах пешком остановка ЖД Вокзал, откуда можно доехать в любой район города. Прямо у дома остановка Николая Зенькова. Рядом 2 детских сада и 2 общеобразовательные школы, продуктовые магазины, Поликлиника 2 и Железнодорожная больница.
Квартира подходит под семейную ипотеку 6 % годовых, успейте приобрести!
Звоните!!!
Покажем и бесплатно забронируем квартиру!
Подберем ипотечную программу с максимально комфортным ежемесячным платежом!
Примем Вашу квартиру по схеме трейд-ин в счет покупки данной квартиры!



























