Аренда офиса
Предлагается в аренду офисный блок в бизнес-центре ''Эра''. Центр города, первая линия. Удобная транспортная доступность, парковки: гостевая перед знанием, охраняемая - во дворе бизнес-центра.
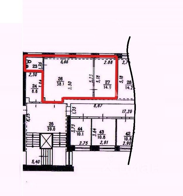
Офисный болк имеет кабинетную систему, состоит из 2-х смежных помещений: 38 кв.м и 15кв.м.
Готовый ремонт, без вложений
Кондиционирование,
охранная/пожарная сигнализация,
имеется собственный С/У.
Коммунальные услуги оплачиваются дополнительно.
Звоните, чтобы успеть записаться на проказ!

















