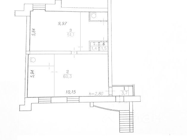
К сдаче в долгосрочную аренду предлагает офисное помещение площадью 120,8 кв.м в самом центре города.
Пожарная и охранная сигнализация, видеонаблюдение.
Офис укомплектован всей необходимой мебелью на как минимум 12 рабочих мест: рабочие столы, шкафы, стеллажи, большой переговорный стол, столы и кресла.
Помещение состоит из 3 кабинетов, подсобных помещений и 2 санузлов.
Свободный доступ в здание отдельный вход. На парковке всегда есть парковочные места редкость для центра города.
Удобная транспортная развязка. Здание находится на 1 линии.
Стоимость залога составляет: 120000 рулей, без комиссии агентства.
Звоните! Организуем показ в удобное для вас время.



























































