Аренда от собственника, без комиссии
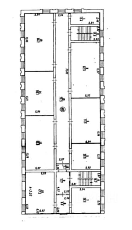
Помещение свободного назначения, 500 м2, занимая полностью весь этаж, находится на 4 этаже 5-ти этажного административного здания (в его левой половине).
Кабинетная планировка, окна выходят на обе стороны. Светлое теплое пространство с высоким потолком создаст комфортные условия для вашего бизнеса в центре города. Две лестницы: одна центральная, вторая ведет во двор. Большая парковка во дворе и перед зданием будет оснащена шлагбаумами.
Отопление входит в стоимость аренды, свет и вода оплачиваются отдельно по счетчикам.
Предоставляются арендные каникулы с оплатой коммунальных услуг на время ремонта, срок обсуждается индивидуально.
Лифт отсутствует, но собственник готов рассмотреть его установку - обсуждается с арендаторами.
Ваш будущий сосед на первых трех этажах уже начал делать ремонт (медицина).
В правой половине здания находятся: Охрана Росгвардии, Территориальный фонд геологической информации, Промэнергосервис.
Остановка общественного транспорта в 10 минутах ходьбы. (возле Центрального рынка).
Звоните! Ответим на ваши вопросы и организуем показ в удобное Вам время.







































