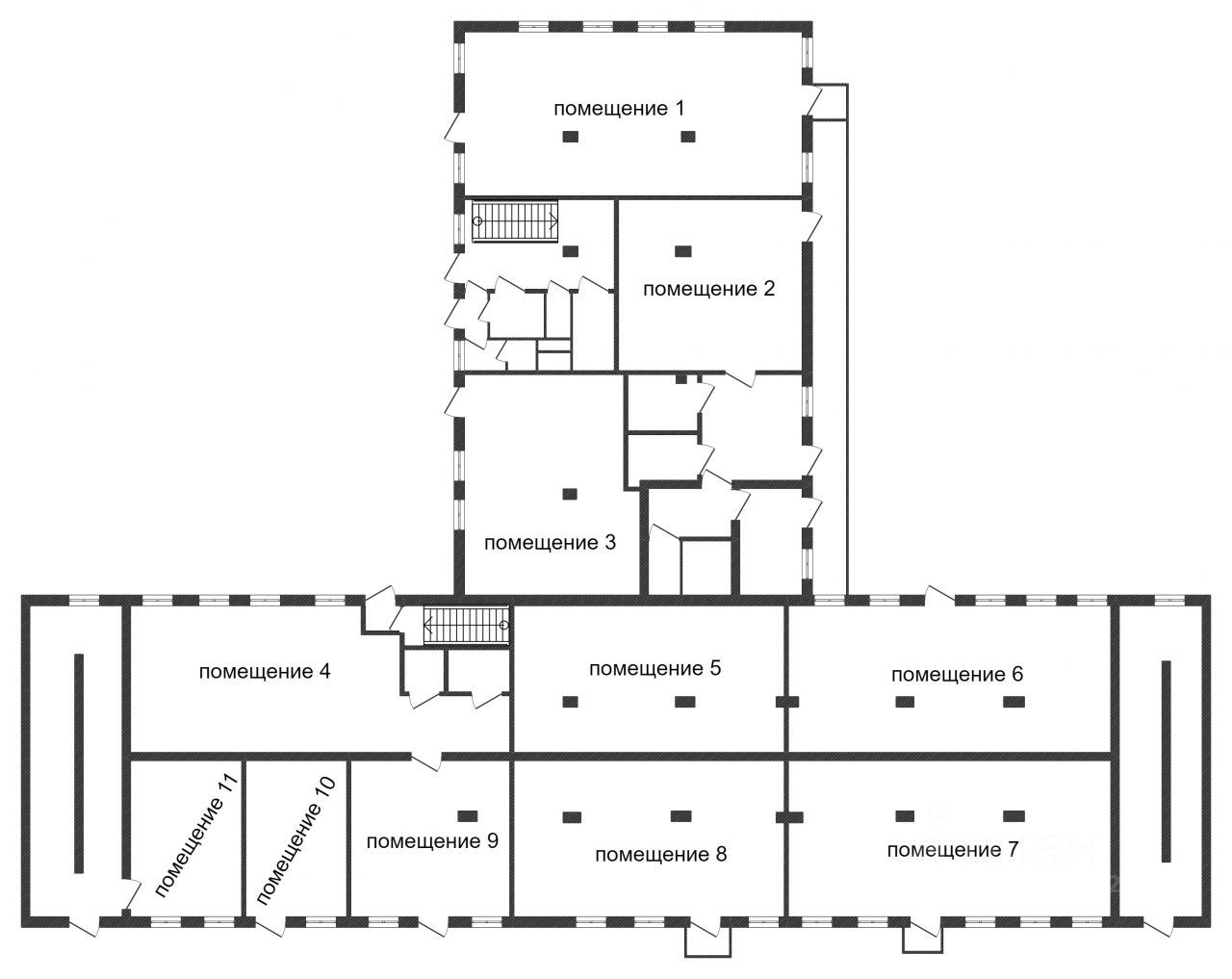
Сдаются в аренду в производственно-складском комплексе помещения 47.4 кв.м (на схеме помещение 10) и 105 кв.м (на схеме помещение 3). Охраняемая территория, собственная парковка, коммунальные услуги оплачиваются отдельно. Цена указана за маленький склад. Звоните и записывайтесь на просмотр, организуем в удобное для Вас время!

















