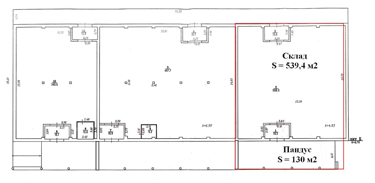
На складе общей площадью 2 065,9 м2 собственник предлагает арендовать помещение площадью 669,4 м2, в составе которого склад площадью 539,4 м2 и крытый пандус (130 м2). Высота потолка 6,59 м. Пол асфальт. Помещение отапливаемое. Отдельный вход. Имеется умывальник, санузел. Стоимость 300 руб. за 1 м. Коммунальные платежи не включены.
От собственника, без комиссии.





