Код объекта: 1859382.
Жить на природе в собственном доме в непосредственной близости от центра города - это ваша мечта? Компания МИАРД Владис готова воплотить ее в реальность!
Жилой дом в СНТ ''Иртыш-1'' - это ваш шанс комфортной загородной жизни. Расположение СНТ уже оценили десятки счастливых домовладельцев - отличная дорога, 20 минут от центра города, тихое место на достаточном расстоянии от дороги, всего 100 домов в СНТ. Поблизости р. Иртыш. Остановка общественного транспорта и магазин в пяти минутах ходьбы от дома. Въезд на территорию СНТ через шлагбаум.
Построен из кирпича, фундамент ленточный. Крыша - металлическая черепица. По периметру всего дома - теплый пол (водяной). Ремонт выполнен с использованием современных качественных материалов.
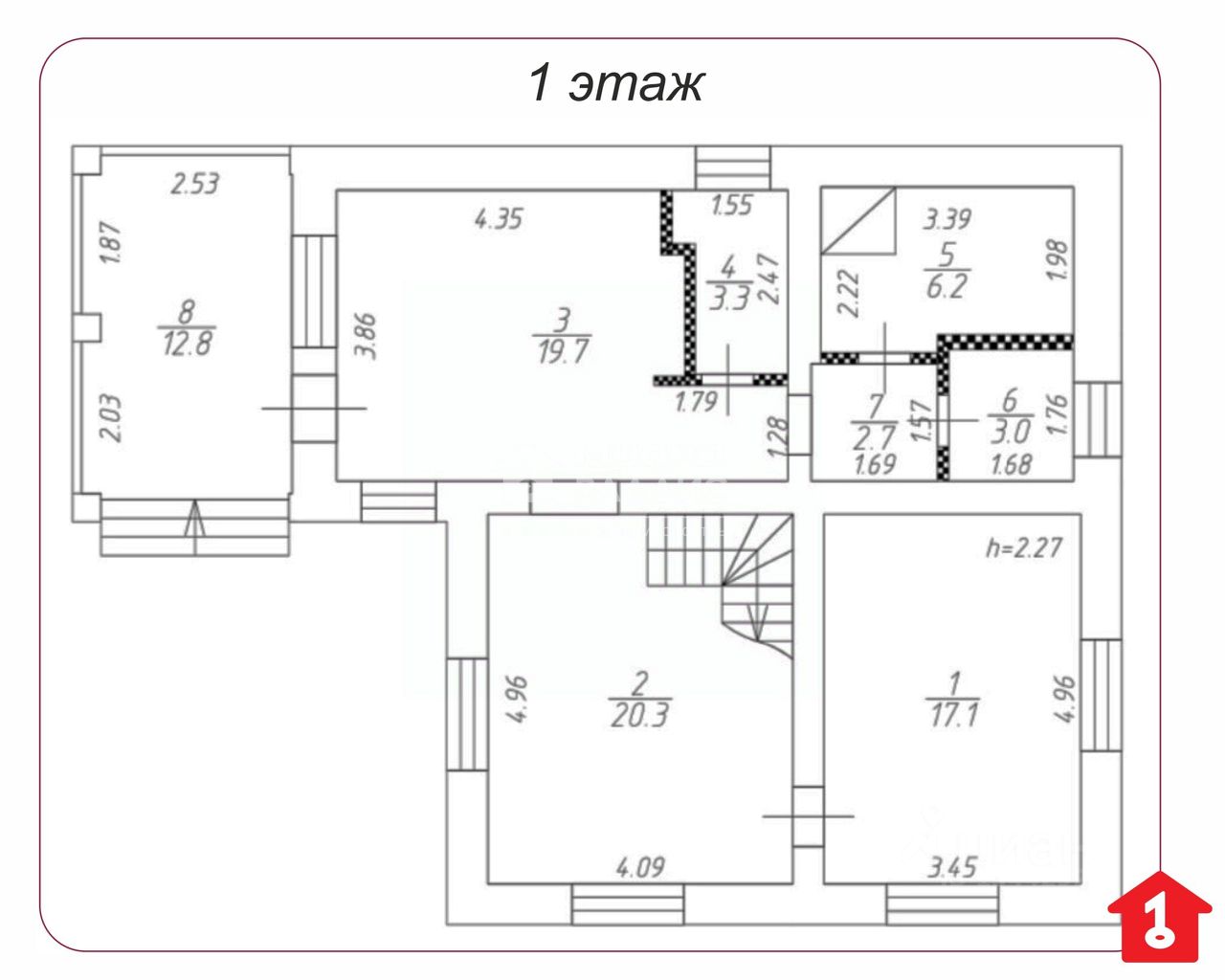
Функциональная планировка: первый этаж входная группа, просторная кухня, гостиная, спальня, санузел, техническая комната, второй этаж спальня, большая гардеробная, спальня с закрытой террасой, санузел.
Коммуникации газ (газовое отопление, 2-х контурный котел ITALTHERM), резервный электрический котел ТепорТех, вода централизованная (городская) и на участке проведена вода для полива (СНТ). Септик с переливом 5 колец. Заведен интернет (оптоволокно). Видеонаблюдение по периметру всего участка. Установлены кондиционеры. Водонагреватель электрический дополнительно.
Территория вокруг дома облагорожена: ландшафтный дизайн участка, освещение, высажено множество хвойный и других растений, газон. Построены беседка и летняя веранда.
Бонус для покупателя - все наполнение дома, в том числе и бытовая техника остается новым собственникам!
Документы прошли юридическую экспертизу! Готовы ответить на все интересующие вас вопросы и оперативно показать! Звоните!





































































