Предлагаю к продаже дом в СНТ Ромашка.
СНТ находится в черте города. Развитая инфраструктура. Рядом новая школа Амура, детские сады, торговые комплексы, сетевые магазины.
Автобусная остановка на выходе из СНТ, можно уехать в любую часть города.
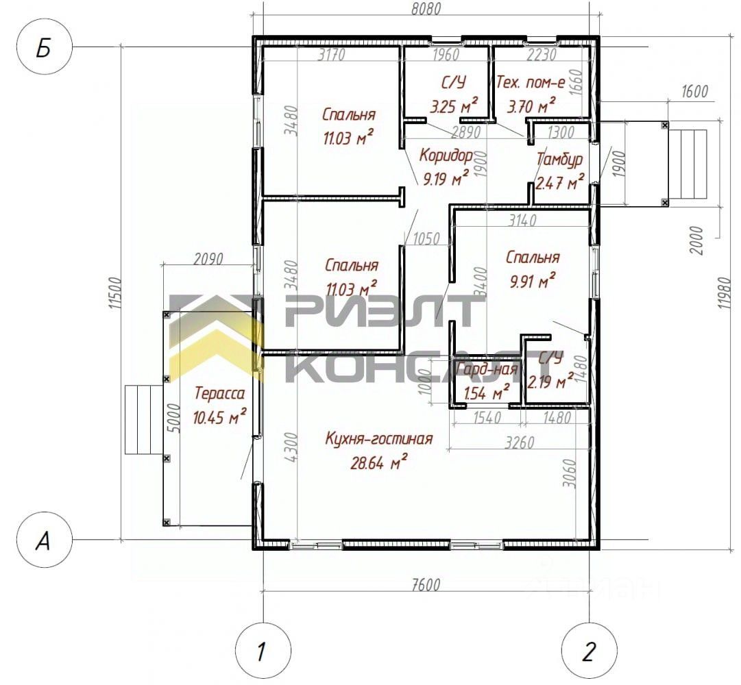
Дом: кухня - гостиная , 3 спальни, 2 сан. узла, тех . помещение, терраса , крыльцо
Остекление: пластиковые окна , профиль 5 камер
Отопление: водяное отопление радиаторы, электрический котел 12 Квт.
Электрика: скрытая разводка по всему дому
Водоснабжение: Централизованное
Канализация: септик 3м.куб переливной.
Каркас наружных стен выполнен из доски хвойных пород 50х150 с заполнением утеплителем технониколь 150мм
Наружная облицовка - имитация бруса ( металл)
Наружная облицовка цоколя - имитация бруса ( металл) цвет согласно эскиза
Кровля - металлочерепица , вентиляционные элементы
Фундамент - ЖБИ сваи длина 4.0 м
Пароизоляция - изоспан 150мкм
Ветрозащита - гидроизоляция - ветрозащитная мембрана изоспан.
Внутренняя отделка стен - гипсокартон 18мм в 2 слоя
Перегородки - на деревянном каркасе с отделкой ГКЛ 12мм с двух сторон
Утеплитель полов - технониколь 200мм
Утеплитель потолка - технониколь 200мм
Подходит под ставку - 6% . Помощь в оформлении без первоначального взноса. Законно.























