Продаётся новый одноэтажный дом 136 м2 на участке 9.3 сотки в коттеджном посёлке Русский стиль.
Это последний дом на уже заселенной улице. Улица тупиковая, минимум шума.
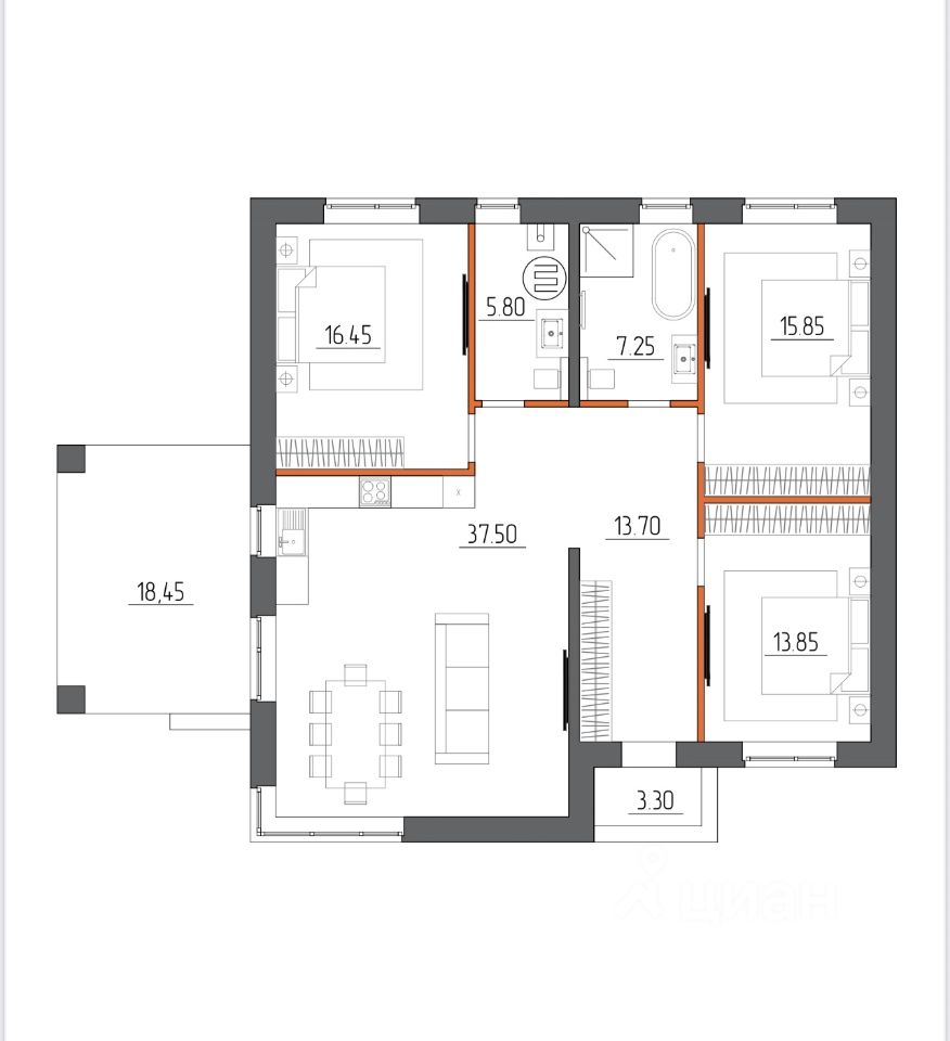
Дом специально спроектирован под участок, все окна смотрят на восток, юг, запад - в доме всегда будет много света. Все помещения просторные и продуманные. Высота потолков в чистовом виде 3 м.
Комплектация дома:
Фундамент - свайно-ростверковый
Стены - облицовочный кирпич, базальтовый, негорючий утеплитель 150 мм, керамзитоблок.
Перегородки - кирпич
Полы - заводские плиты перекрытия
Кровля - двухслойная мягкая черепица (нет шума от дождя, не сходит снег), подшивка карниза качественными софитами (не меняют цвет и через 10 лет, водосточная система проверенная на сотнях наших домов).
Окна - пластиковые с ламинацией.
Высота потолков 3,2 м в черновом исполнении (от плит) в чистовом виде 3 м.
Бетонная отмостка шириной 1 м
Вертикальная планировка участка
Электричество Россети
Вода центральная
Канализация разведена по дому выведена в септик
Газ по границе участка, подключение после оформления дома. Последнее фото соседнего дома с подключенным газом.
Дорога из бетонных плит
Дома продаются без внутренней черновой отделки и разводки инженерных систем. Эти работы выполняются дополнительно после согласования дизайн-проекта.
Дом строится компанией Коттеджный Мир. Мы уже 22 года строим загородные дома в Омске для наших заказчиков и знаем, из чего и как строить, чтобы вам комфортно жилось в Вашем доме. Нам важна наша репутация, поэтому мы с уверенностью даем гарантию на дом 2 года.
Оперативно покажем дом и расскажем о всех этапах его строительства и дальнейшей эксплуатации.
Подходит под все виды ипотек. (Семейная, сельска, IT).











