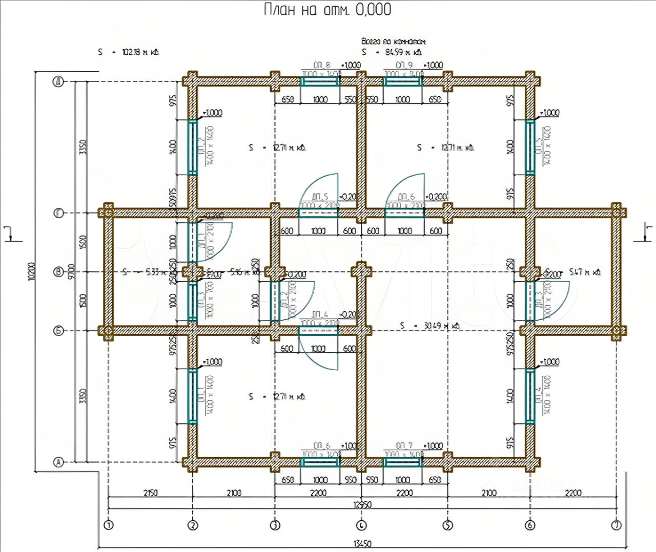
В продаже: 8,2 сот — с домом. Срочно! Оплата наличка, ипотека. Цена по себестоимости — соответствует акту ввода обьекта. Оформление ипотеки и услуг риэлтора за ваш счет. При желании оба участка 7,5+8,2сот. За 6960т. Р. (опт) и оба дома(75м+97м), + материалы. Исключительное расположение, исключительные соседи. Превосходная усадьба не далеко от города, где есть все для гармоничной жизни и комфортного отдыха, ждет своего покупателя — ровный участок 40,2*38,9=15,7, огороженный со всех сторон, трассой газа с установленной личной колонкой, электричество от персонального столба, центральный водопровод по улице. Собраны оба, дом с теплой крышей в 2эт, 7*7 и 1эт, 9*9, под завершение, профилированный брус — выстоялся на усадку, выставлен по азимуту, соответствии проектом, максимального освещения сторон в любое время года. Зарегистрирован в росреестре, паспорт на дом, присвоен адрес. Тихое, уютное место для загородного проживания и отдыха семьи, с прекрасно организованной инфраструктурой и преимуществом Ижс в поселке — газ, вода, дороги, спорт городок, школа, садик, стадион, клуб конный, асфальт, магазины, фельдшерский пункт, администрация, транспорт, чистка снега, обслуживание улиц, и т. Д. Пишите, звоните, Дкп через Мфц в короткие сроки — документы готовы, полный комплект. Разумный торг за ваш счет. Дешевле — пустая земля в дикой зоне, чистом поле — без удобств, прописки, света, дорог и направлений, где чертополох и соловьи разбойники.























