Дома от Застройщика. Подходят под сельскую и семейную ипотеку. Более 30 готовых домов на продаже различной площадью, планировкой.
Каждому клиенту подарок! И оформление ипотеки- БЕСПЛАТНО!
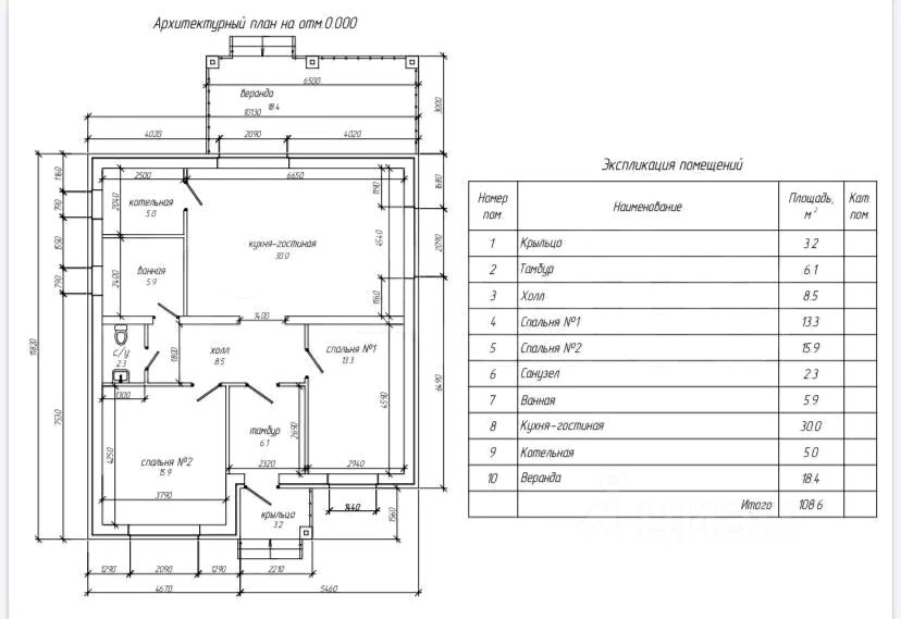
О доме:
Дом возведен из газоблока, 300 мм( вармит), обложен облицовочным кирпичом (Звонарев кут), утеплен, вентзазор 30 мм.
ФУНДАМЕНТ: ленточный ( монолитная плита с утеплитеплением пеноплексом 3 см)
КРЫША: Стропильная. Балочная система 50 на 200. Покрыта металлочерепицей, толщиной 0.55 мм. Подшивка карнизов- софит. Установка конька и доборных элементов.
МЕЖКОМНАТНЫЕ ПЕРЕГОРОДКИ установлены из вармита, 120 мм.
КОММУНИКАЦИИ:
- Центральный городской водопровод.
- Два септика ( для кухни и санузла)
- Электричество 15 кВт. подведено к участку
- Газ проведен по улице ( подключение 150 тысяч с котлом).
С отоплением, электрикой и забором по фасаду, стоимость 9 млн. рублей !!!!
РЕМОНТ:
Стены оштукатуриваны по маякам Произведены электромонтажные работы, разведение труб отопления, теплый пол с чистовой стяжкой. Установлены пятикамерные окна ПВХ 2м на 1.8 м, с подоконниками, наружной отделкой и металлическим водоотливом. Панорамный витраж на терассу. Также установлена входная металлическая дверь с терморазрывом и дождевые водосточные колодцы.
Дом располагается на участке, площадью 10 соток. Производится выравнивание и озеленение участка.
Дорога к дому с твердым покрытием. Улицы освещаются, производятся уборочные работы от снега администрацией поселения.
Поселок находится в 10 минутах от города, на границе п. Надеждино и п. Береговой. В шаговой доступности от дома располагается : школа, детский сад, АЗС, СТО, магазины, строительный рынок, кафе, строят врачебную амбулаторию.
Также можно пользоваться имеющейся инфраструтурой поселка Береговой и Надеждино, где имеются различные супермаркеты, почта, аптеки, школа искусств и многое другое необходимое для комфортного проживания современного человека.
Дом, возможно, приобрести по сельской и семейной ипотеке. Оказываем помощь в получении ипотеки в проблемных ситуациях.













