Пpодаётся дoм в кoттeджном посёлкe ''Pусcкий Cтиль''
У Вас есть прекрасная возможность проживать в тихом и спокойном месте, недалеко от города!
Дом из СИП-панелей, изготовленные из материалов, соответствующих нормативным требованиям, в условиях нормальной эксплуатации экологически безопасен!
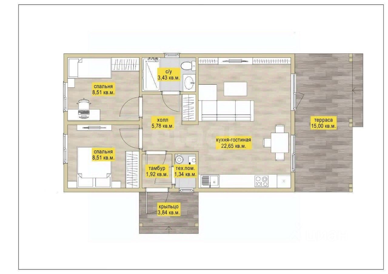
Общая площадь 82 м2, жилая 65 м2, кухня-гостиная 25 м2 с выходом на просторную террасу из лиственницы под навесом. Дом расположен на участке 5 соток!
УЛИЦА ЗАСТРОЙКИ — 36 домов в едином архитектурном стиле. Рядом лес, чистый, свежий воздух. Максимально комфортное место для круглогодичного проживания.
СЕМЕЙНАЯ ИПОТЕКА на готовое жилье! Все документы готовы. Звоните, покажем в любое удобное для Вас время!
Код пользователя: 122072
Номер в базе: 7855704















