Продажа от собственника.
Участок правильной формы 50*20 м, сухой.
Подтоплений за 15 лет не было, даже во время весеннего паводка!
Дом - ''термос'': теплый зимой и прохладный летом.
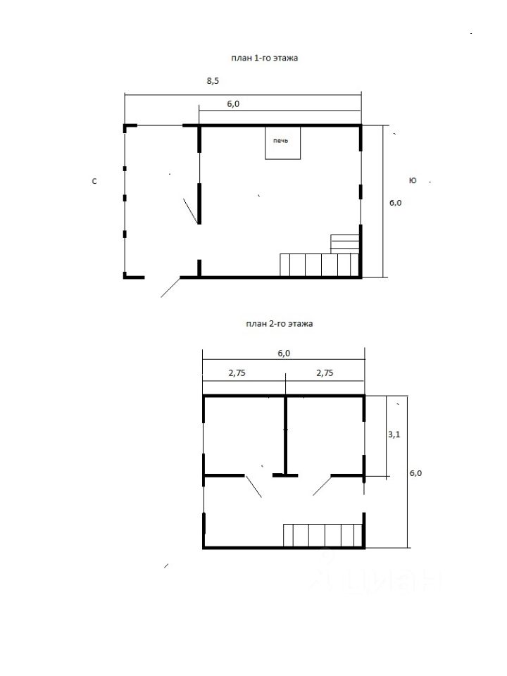
Дровяная печь с каминным стеклом и духовкой. Зимой ''дом выходного дня'', из холодного состояния прогревается до + 25 гр. за 3-4 часа.
Банная печь с функцией ''Сухой пар''
Хозблок (мет гараж) с погребом (мет кессон).
Парковка для 2 авто.
Мангальная зона: барбекю, казан, разделочный стол.
Посудомоечная машина.
Теплицы 2шт, посадки овощей, цветы, ягоды, яблони.
Сезонная подача речной воды для полива -до 5-ти дней в неделю!
Свежий загородный воздух! Соловьиные переливы в июне!
Рыбалка, пляж, грибы, веники березовые - в шаговой доступности!
Велопрогулки летом и лыжи зимой (есть трасса)!
Рядом с муниципальной дорогой, зимой добраться без проблем.
Продажа в связи с переездом.
Реальному покупателю - О цене договоримся! Но при личном общении на участке....









































































