Код объекта: 1945506.
Компания МИАРД Владис предлагает современный кирпичный дом на улице Александра Трикачева, построенный в 2025 году.
Идеально подходит для круглогодичного комфортного проживания семьи.
Площадь жилого помещения 154,7 м2. Площадь земельного участка - 6.58 соток с межеванием и ограждением с трех сторон. Участок имеет статус индивидуального жилищного строительства, огорожен забором из евроштакетника. Гараж - 35,7м2, не входит в площадь дома.
Перед домом предусмотрена площадка для парковки. Подъезд к участку асфальтированный. Дом построен из керамзитоблоков, утеплителя, облицовочного кирпича. Перекрытия - ЖБИ. Крыша покрыта металлочерепицей: 4 слоя утеплителя, шумоизоляция.
Все коммуникации - центральные (электричество, вода, канализация, газ). Отопление обеспечивается индивидуальным двухконтурным газовым котлом, что позволяет эффективно управлять расходами на отопление. Здание на сваях, без подвала.
Проект дома выполнен с соблюдением градостроительных, санитарных и противопожарных нормативных требований.
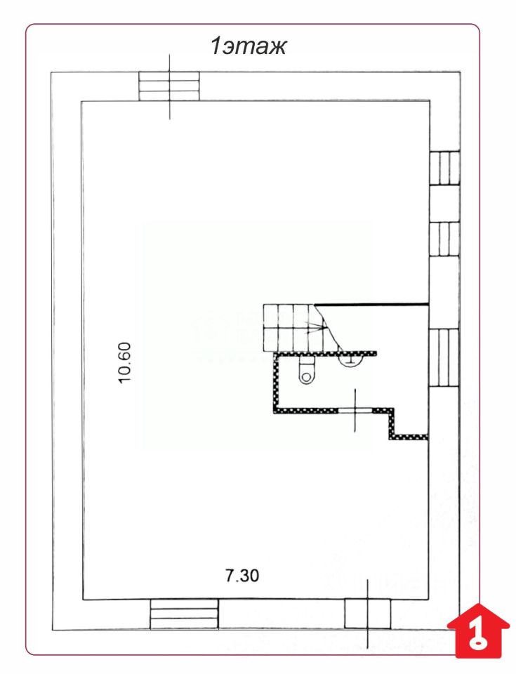
Удобная планировка включает в себя элементы современного дизайна: большой холл с комфортной лестницей, панорамные окна ''в пол'', просторная кухня-гостиная, с возможностью обустройства дополнительной изолированной комнаты и вторым выходом на задний двор. В группу помещений второго этажа входят: холл, второй санузел, 2-3-4 спальных комнаты, гардеробная. Ремонт под чистовую отделку, без перегородок, включает стяжку и штукатурку, что позволит новым владельцам быстро и без лишних хлопот воплотить свои дизайнерские идеи. Для удобства покупателя разработаны варианты планировочных решений. Стены выровнены по маякам, установлены оконные конструкции класса А, смонтированы откосы и подоконники.
Возможна продажа по ипотеке, в том числе семейной, доступна рассрочка от застройщика. Полное юридическое сопровождение. Не упустите возможность стать владельцем этого прекрасного дома! Позвоните нам прямо сейчас, чтобы узнать больше и записаться на просмотр.















