Готовые дома от застройщика!
Семейная ипотека под 6%!
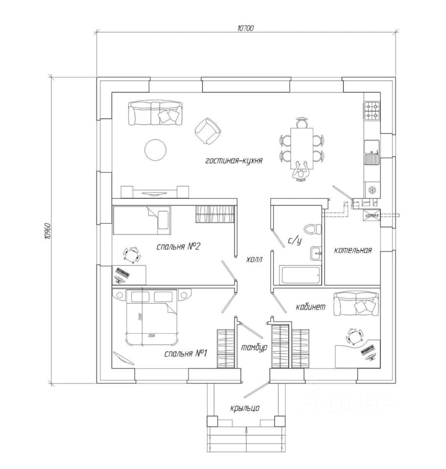
Продается новый дом площадью 103 м² с ремонтом под ключ, построенный в 2025 году
3 комнаты+кухня-гостинная, раздельный сан/узел, котельная
Стены под покраску , разводка электричества, выводы под люстры, установлены точечные светильники, натяжной потолок, пол кафель/ламинат, сан/узел в кафеле , установлена сан/техника (душевая кабина, раковина, 2 унитаза), межкомнатные двери.
Одноэтажное здание из газоблоков, облицован кирпичом, с крышей из металлочерепицы. Уличная подсветка дома. Просторные окна обеспечивают хорошее естественное освещение. Дом оснащен электрическим отоплением смонтирован теплый пол, возможно подключение к центральному водоснабжению , канализация — септик. Газ проходит по границе участка, что облегчает подключение. Земельный участок категории ИЖС.
Расположен в районе с развитой инфраструктурой: рядом есть детский сад, школа (ходит школьный автобус), Магнит, Пятерочка, аптеки, остановка общественного транспорта.































































