Арт. 132199358 На чистой продаже отдельно стоящий жилой дом 2021 года постройки по адресу 1-й Пикетный переулок 57.
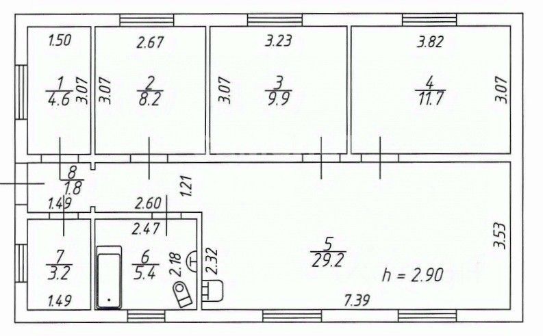
Общая площадь дома составляет 78 м2. Дом тёплый, построен из газобетонных блоков. Фундамент ленточный.
Высокие потолки в 2.9 м
Земельный участок 4 сотки. Дом и земля в собственности.
Коммуникации:
1.Газ ( установлен двухконтурный котёл)
2.Вода центральная
3.Канализация септик переливной
Звоните, расскажу подробнее.



























