Цена и качество -вот характеристики этого дома !
Кирпичный дом 80,5 м² с дизайнерским ремонтом ждет своего покупателя,участок 12 соток в престижном районе .
Расположен в Омском районе, в селе Розовка. Это современный посёлок с развитой инфраструктурой.
Характеристики дома ВОДОПРОВОД И КАНАЛИЗАЦИЯ!
ГАЗ в доме. Теплый пол.
Дом построен из газоблоков, облицовка керамическим кирпичом
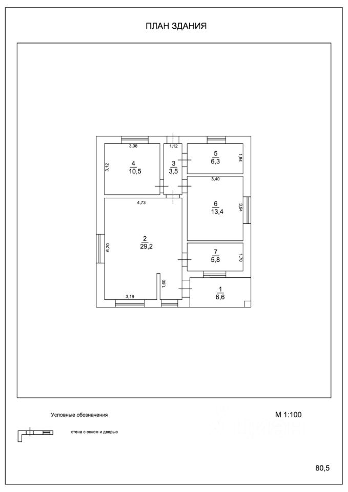
Планировка включает две спальни, большую кухню-гостиную, санузел, гардеробную, просторную прихожую, подсобное помещение .
Инфраструктура и расположение
Посёлок находится в 20 минутах от центра Омска
супермаркеты Пятёрочка, Ярче
аптеки
остановки общественного транспорта
администрация
средняя и начальная школа
два детских сада
пункты выдачи заказов Ozon и WB
высокоскоростной интернет
Условия покупки
СЕЛЬСКАЯ ИПОТЕКА
IT-ипотека
материнский капитал
Есть конкретные вопросы , по ценам или условиям покупки, уточните их — помогу найти нужную информацию.









































