ДОБРОТНЫЙ ДОМ - построен из кирпича и газобетона, подходит под семейную, сельскую ипотеку, также можно использовать материнский капитал.
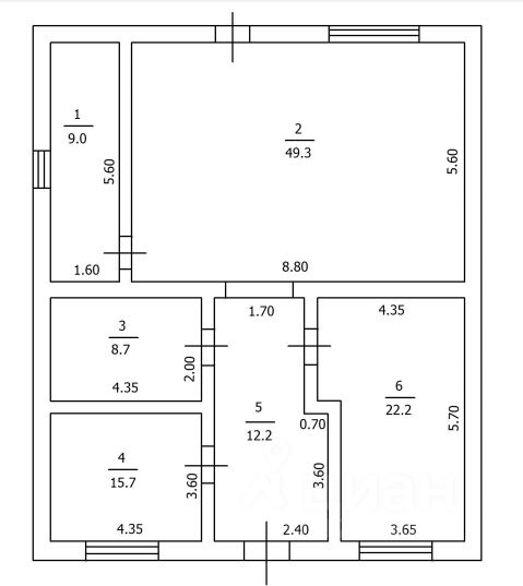
ФУНКЦИОНАЛЬНОСТЬ - большие комнаты, и огромная кухня гостиная- 50 м.кв.
МАТЕРИАЛ СТЕН - заполнение стен пеноблок (200мм наружные стены, 300мм центральная перегородка), кирпич, армопояс по периметру, стены утеплены ба - зальтовой ватой в 2 слоя, общей толщиной 100мм. Пол утеплен пеноплексом, пото-лок 3*50мм слоя мин. ваты (высота потолков 3,15м ), вытяжка в санузле и тех. поме-щении.
ФУНДАМЕНТ - основание дома: ленточный армированный фундамент с плитами пе-рекрытия, утеплен пеноплексом снаружи под фасадной плиткой (ширина 500мм, высота 1000мм).
УЧАСТОК - под домом 9 соток, имеет правильную форму, сухой и высокий.
ЭТАПЫ СТРОИТЕЛЬСТВА - имеются фотографии этапов стройки.
РЕМОНТ - отштукатурены стены под обои, залит пол под плитку или ламинат, элект-рика и сантехника готовы, в теплоузле стены и пол уже в плитке, щиты электри - ческие , водяные рамки, насосы, газовый и электрический котел установлены, вытяжка в санузле и тех. помещении.
КОММУНИКАЦИИ - все коммуникации уже в доме, есть вода, электричество и газ.
ОТОПЛЕНИЕ - теплые полы по всему периметру, радиаторы отопления, дом уже отапливается газом.
ОКНА, ДВЕРИ - пластиковые 5-х камерные окна и двери, утеплённая металлическая входная дверь с терморазрывом (окна, двери ПВХ Exprof).
КОЛИЧЕСТВО КОМНАТ - кухня-гостиная, спальни 2 шт., сан. узел 1 шт., тех. помещение (теплоузел).
РАСПОЛОЖЕНИЕ - приятно удивит, это близость к городу, буквально 15-20 минут на транспорте и вы уже в центре города. Средняя школа и детский сад находятся в со-седнем Пушкино. В школу каждое утро по расписанию, и в обед точно также, возит детей бесплатно школьный автобус. Также на регулярной основе ходит рейсовый автобус 135.
ИНФРАСТРКТУРА - в Пушкино имеются самые необходимые магазины, отделение почты, пункты выдачи озон и вайлдбериз, ФАП, дом культуры, сельская администрация.
ПОКУПКА - понравился дом, или у вас есть свой непроданный объект недвижимо- сти, и вы хотите приобрести наш? Связывайтесь со мной любым удобным способом, помогу в любых вопросах связанных с недвижимостью и организую показ в удоб- ное время!



































































