Уютный и просторный одноэтажный дом площадью 115 кв. м, построенный из современных и качественных материалов.
В коттеджном поселке - Green Park
Premium, поселок расположен в 7 км от Центра города по Пушкинскому тракту, в тихом, спокойном месте в непосредственной близости от соснового бора.
Дом возведен из газобетонных блоков, которые славятся своей энергоэффективностью и теплоизоляционными свойствами. Для долговечности и эстетичного внешнего вида выполнена отделка из облицовочного кирпича, обеспечивающего надежную защиту фасада от воздействия окружающей среды.
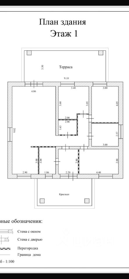
Продуманная планировка делает пространство дома удобным и функциональным. Большая совмещенная кухня-гостиная станет любимым местом для семейных вечеров и приема гостей. В доме есть три изолированные спальни, одна из которых может использоваться как кабинет или гостевая комната.
В доме предусмотрен один совмещенный санузел. В нем достаточно места для ванны, душевой кабины, унитаза, раковины и стиральной машины.
Этот дом станет уютным и комфортным местом для Вашей семьи!
Участок позволяет построить баню, обустроить мангальную зону, установить бассейн и беседку.
Газоснабжение, электричество, водоснабжение и канализация (септик) заведены в дом.
Дом с предчистовой отделкой ( штукатурка стен, разведена электрика, теплые полы по всему дому, стяжка пола). Забор из профнастила ( графит) по 3-м сторонам участка.













































