Рассмотрим обмен на вашу недвижимость в Омске!
К продаже предлагается благоустроенный дом на просторном ухоженном участке 15 соток в Азовском районе.
Дом построен в 2013 году из керамзитоблоков, облицованных кирпичем.
Коммуникации: газовое отопление, центральное водоснабжение, электричество, видеонаблюдение, интернет.
Дом оборудован всем необходимым для комфортного проживания: теплые полы, насосная станция, посудомоечная машина, духовой шкаф, микроволновая печь, душевая кабина, джакузи.
Цокольный этаж: спортивный зал, хозяйственное помещение и душевая.
Первый этаж: входная группа, большая гостиная, кухонная зона, кабинет, гардероб, туалет.
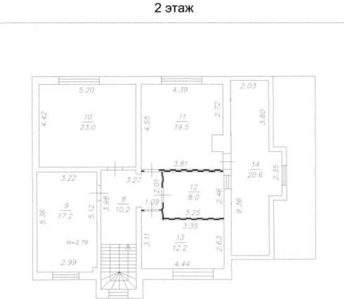
Второй этаж:4 спальни, ванная комната, холл, балкон. Также в доме зимний сад, гараж (выход из дома).
Кроме дома на участке расположены беседка и большой двухэтажный гараж с двумя смотровыми ямами и воротами с электроподъемником.
Территория под видеонаблюдением, освещение по периметру дома, над гаражом и перед гаражом, автовключение. Большое количество посадок.
На территории участка расположены: баня, теплица, гараж, хозяйственные помещения.
Инфраструктура развита: множество магазинов, рынок, аптека, почта, ФАП, детский сад, общеобразовательная школа, Дом культуры и творчества, Озон, Вайлдберриз.
Рядом находится остановка общественного транспорта. Развито транспортное сообщение с городом (каждые 15 минут маршрутные такси и автобусы), улицы заасфальтированы.
Роза ветров на город, всегда чистый воздух.
Прекрасное место для жизни и отдыха!
Гарантируем юридическую чистоту, поможем с оформлением ипотеки, а также на всех этапах сделки. Звоните!

























































































