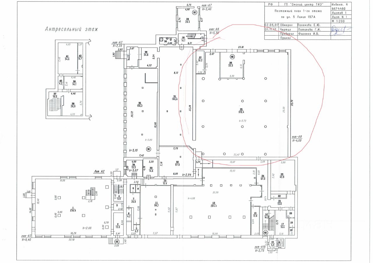
Продается помещение свободного назначения в центре города под склад, чистое производство, торговлю. Хорошая транспортная доступность. Имеется возможность подъезда грузового транспорта (кроме фур). Центральное отопление, вода
| Этаж | 1/1 |
| Первая линия | нет |
| Отдельностоящее здание | нет |
| Отдельный вход | нет |
Продается помещение свободного назначения в центре города под склад, чистое производство, торговлю. Хорошая транспортная доступность. Имеется возможность подъезда грузового транспорта (кроме фур). Центральное отопление, вода




