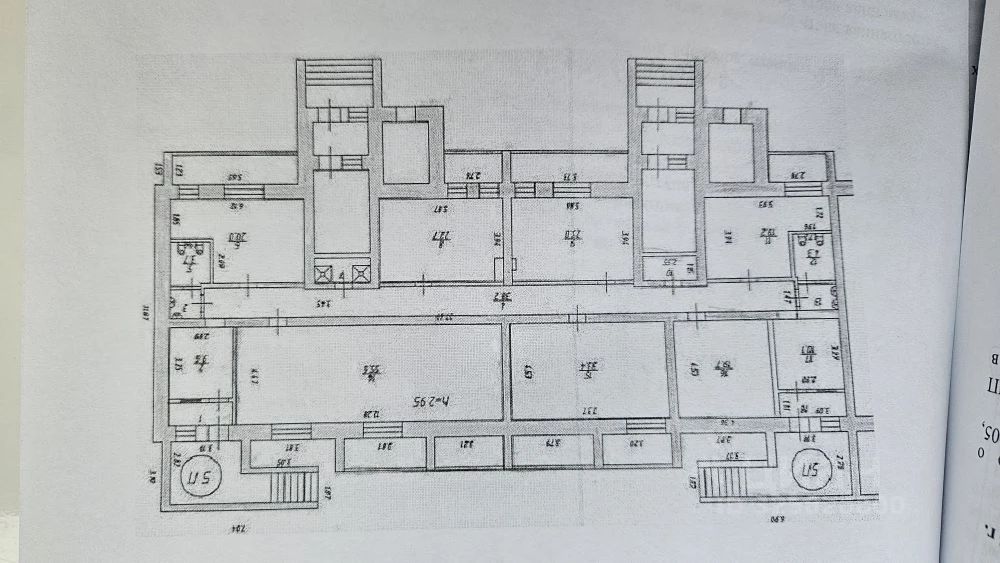
Продается коммерческое помещение в нефтянниках. Общая площадь 276 квадратных метра. Два входа . Одна часть помещения сдана под детский клуб. Вторая часть свободная. Возможно продажа по частям. Обсуждаем при встрече.
| Этаж | 1/6 |
| Первая линия | нет |
| Отдельностоящее здание | нет |
| Отдельный вход | нет |
Продается коммерческое помещение в нефтянниках. Общая площадь 276 квадратных метра. Два входа . Одна часть помещения сдана под детский клуб. Вторая часть свободная. Возможно продажа по частям. Обсуждаем при встрече.








