Продажа от собственника, без комиссии!
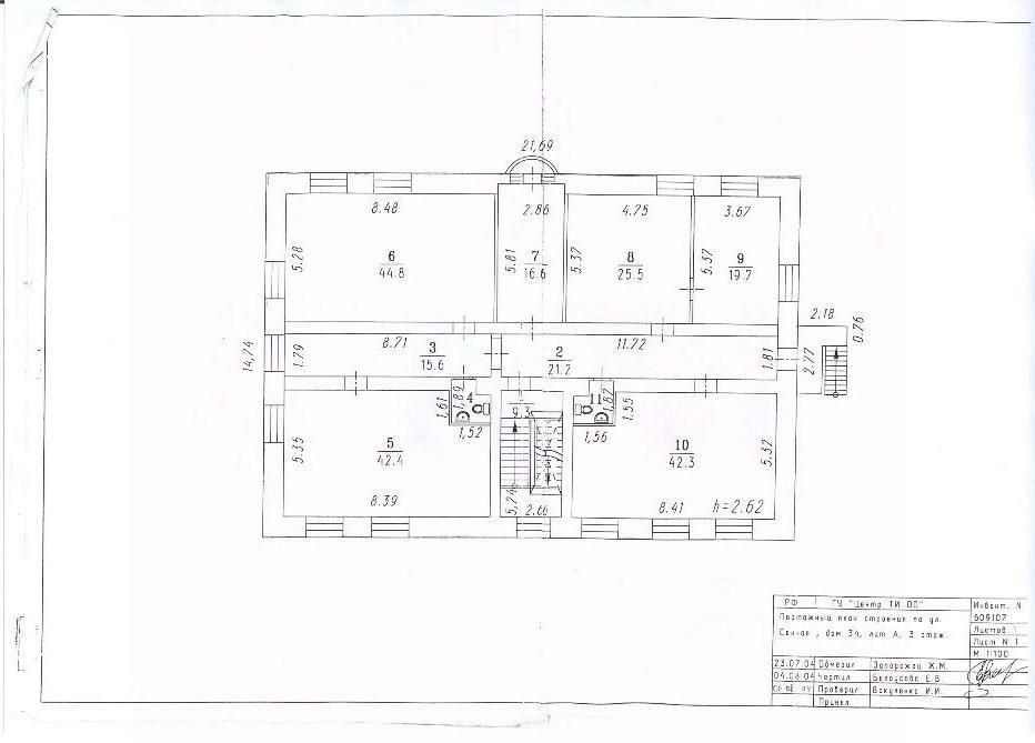
Трехэтажное здание, 764.8 м2 в центре города с собственной парковкой во дворе за шлагбаумом (35 машиномест).
Земельный участок 1293 м2 (в собственности). Все коммуникации центральные. В настоящее время все офисные площади сданы в аренду.
Звоните! Ответим на ваши вопросы и организуем показ в удобное вам время.







































