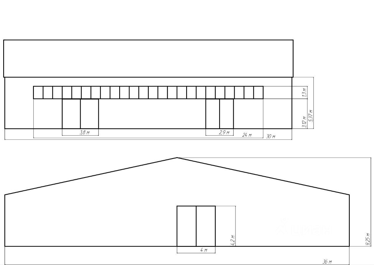
Продается склад 2 этажа. площадь каждого этажа 1080м2. Высота по коньку 9 метров. Находится по адресу Омск. 33 Северная 95. Территория охраняемая с виде наблюдением. Земля в собственности! Возможно дополнительное выделение земли к складу (10 соток) за дополнительную плату.
Возможна сдача в долгосрочную аренду, 300₽/м2.

















