0

1-комнатная квартира, 35.3 м²

Новостройка. 
Жилой комплекс «Снегири»
6 502 300 ₽
184 201 ₽ за м²

Характеристики квартиры

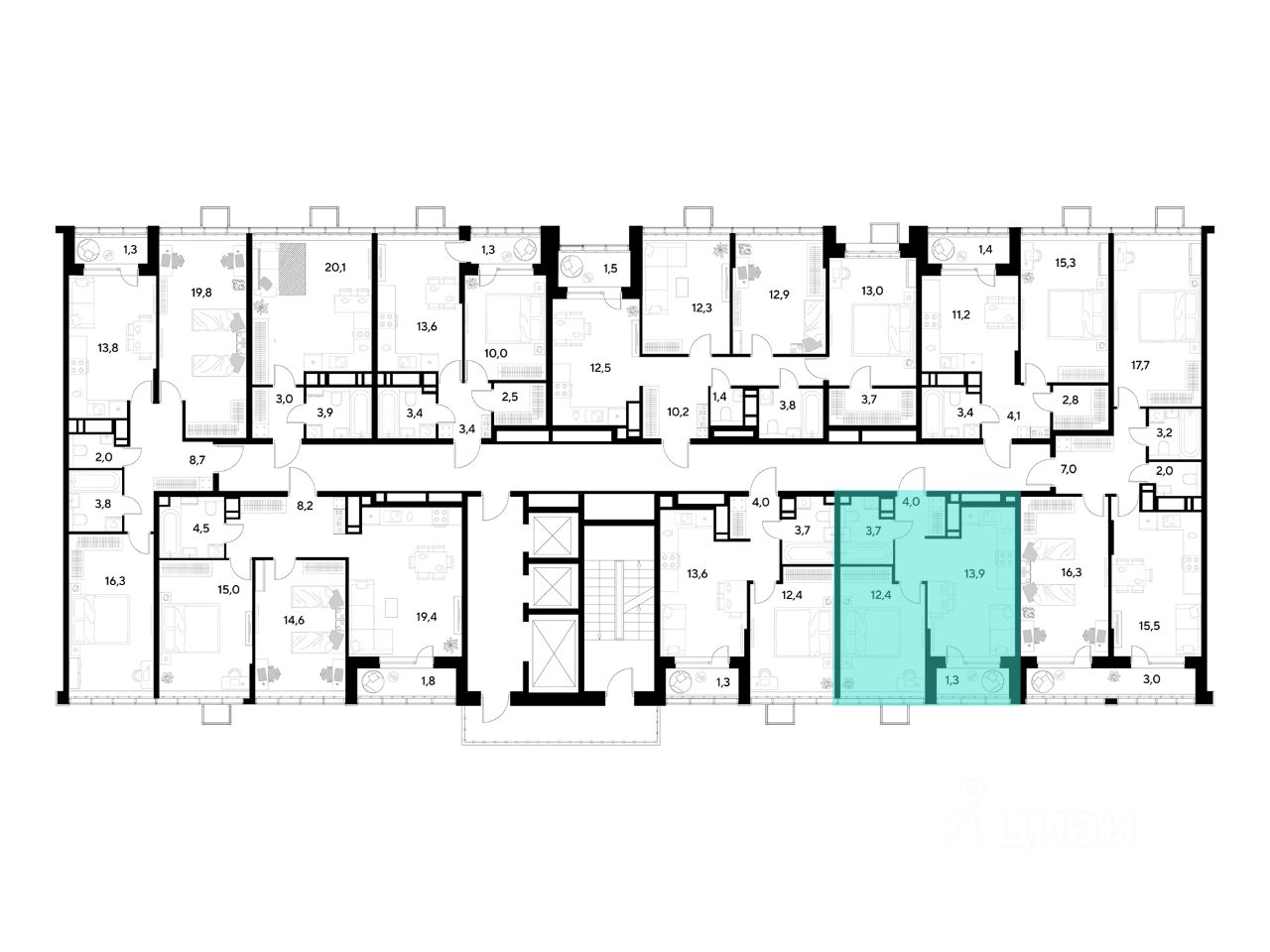
Этаж21/21
Площадь общая35.3 м²
Площадь жилая12.4 м²
Площадь кухни13.9 м²
Планировкане указано
Санузелсовмещенный
Балконлоджия
Состояние/ремонтне указано
Покрытие полане указано
Материал оконне указано
Входная дверьне указано
Вид из оконво двор
Угловаяне указано
Домофонне указано
Счётчики водыне указано

Характеристики дома

Тип домане указано
Материал домамонолитный
Новостройкада
Срок сдачи2-й квартал 2027 года
Высота потолка269
Интернетне указано
Лифтне указано
Мусоропроводне указано
Парковкане указано

Описание

В продаже 1-комнатная квартира от застройщика DOGMA!

ЖК ''Снегири'', г. Омск, корпус 1 Срок сдачи: (4 кв. 2027, общей площадью 35.3 кв.м., на 21 этаже.)

Район для счастливой жизни ''Снегири'' - это семейный квартал, который дарит радость простых вещей: тепло дома, безопасность и живую природу рядом.

В этом уютном уголке Омска каждый может быть собой: родители - отдыхать и заниматься спортом, дети - расти и играть в окружении друзей.

Безопасность и комфорт

• Закрытые дворы без машин с видеонаблюдением

• Подземный и многоуровневый надземный паркинги

• Собственная котельная

• Дизайнерские лобби и зоны отдыха

Инфраструктура для семьи

• 2 детских сада, школа и современная поликлиника на территории

• Игровые площадки из натуральных материалов

• Воркаут-зоны, велодорожки и догхаб

• Коммерческие помещения на первых этажах - от продуктовых магазинов до пунктов выдачи и салонов красоты

Продуманные детали

• Квартиры с готовой отделкой и панорамным остеклением

• Специальные места для хранения колясок и велосипедов

• Кладовые помещения

• Насыщенное озеленение территории

Способы покупки:

• Оплата наличными

• Дистанционная покупка Позвоните сейчас, чтобы забронировать квартиру вашей мечты!

Ваш дом ждет вас в ЖК ''Снегири'' - месте, где созданы все условия для счастливой жизни.


Чистая продажа. Ипотека

История изменения цены

21 апреля 20266 502 300 ₽+0.1%+7 100 ₽
01 апреля 20266 495 200 ₽+0.1%+3 500 ₽
25 марта 20266 491 700 ₽+0.1%+7 100 ₽
18 февраля 20266 484 600 ₽+0.2%+10 600 ₽
показать полностью

Динамика цен

Найти похожие варианты

Также ваc может заинтересовать