Чистая продажа. Евроремонт с нуля.
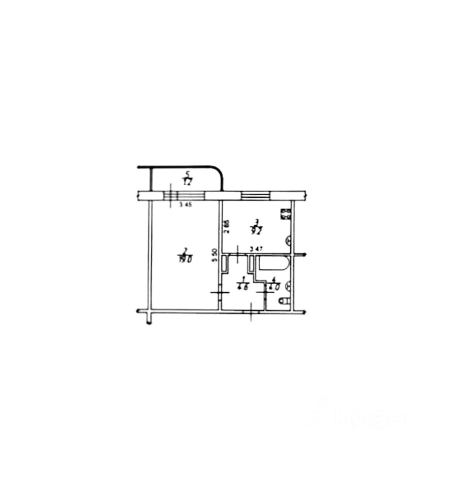
Продаём уютную 1-комнатную квартиру со свежим качественным евроремонтом (закончен в сентябре 2025г), площадью 36.8 кв. м, с приятным панорамным видом из окон, расположенную на 7 этаже десятиэтажного панельного дома 2014 года постройки, по адресу: ул. 21-я Амурская, д 43/2.
Дом расположен настолько удобно, что находясь в самом центре стремительно развивающегося микрорайона Амурский-2, где сосредоточена вся необходимая для жизни инфраструктура, он абсолютно экранирован от городского шума и суеты. Квартира станет вашим оазисом, где вы по-настоящему сможете расслабиться, погрузившись в атмосферу тепла и уюта.
В квартире с нуля сделан новый качественный современный евроремонт (завершен в сентябре 2025):
- идеально сделана новая стяжка пола, уложен качественный ламинат 33 класса, по периметру всей квартиры установлен широкий напольный плинтус
- выровнены стены, оклеены флизелиновыми обоями
- качествено и грамотно разведена новая медная электропроводка
- установлена новая качественная фурнитура в трендовом черном цвете (розетки, выключатели, дверные ручки) на удобном уровне
- новые алюминиевые радиаторы тепла
- заменены откосы и подоконники на ПВХ
- установлена надежная входная металлическая дверь и качественные межкомнатные двери
- ванная комната облицована дорогой современной плиткой
- установлена дорогая качественная сантехника и смесители, зеркало с подсветкой
- сделаны выводы для установки накопительного водонагревателя
- установлен новый полотенцесушитель
- потолок натяжной безупречно натянут во всех помещениях
- на кухне, над натяжным потолком (от вентиляционной шахты до нужного места)
проведена специальная гофра под вытяжку
- установлены приборы учёта на воду, газ, э/э
Квартира полностью готовая, ждет своего покупателя, который сможет по достоинству оценить высокое качество произведенного ремонта!
В отделке квартиры выдержана нейтральная цветовая палитра. Вам остается самое приятное:
- наполнить её простой функциональной, лаконичной мебелью с четкими геометрическими формами
- добавить акценты ярких или природных оттенков в декоре и текстиле
- наслаждаться гармонией и уютом в новом современном пространстве
Ещё более привлекательным предложение делает то, что в ближайшем будущем напротив дома появится живописный парк можно будет любоваться его видами из окон своей квартиры, а также же наслаждаться вечерними прогулками или утренними пробежками на свежем воздухе.
В 3-х минутах от дома находится конечная остановка общественного транспорта, откуда можно с комфортом добраться в любой район города.
Для личного транспорта достаточно места на парковке возле дома.
Местом притяжения жителей города стал Центр семейного отдыха с бассейном, аквапарком, фитнес центром, а зимой ещё и ледовым катком, находящимся в ближайшем микрорайоне на Завертяева.
Квартира на чистой продаже, без обременений. Один взрослый собственник с года постройки дома. Ключи на сделке.









































































