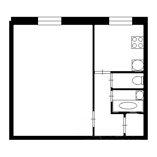
Продается уютная однокомнатная квартира площадью 34,7 м² в кирпичном доме, расположенная на втором этаже двухэтажного здания. Кухня просторная — 7,3 м², санузел совмещенный и оснащен окном для дополнительного естественного света. В комнате установлен большой шкаф-купе, который выполняет роль перегородки, отделяющей спальное место и создающей удобную кладовую. В подъезде всего две квартиры, что обеспечивает тишину и комфорт. Отличный вариант для комфортного и спокойного проживания.
Звоните! Договоримся о просмотре!

































