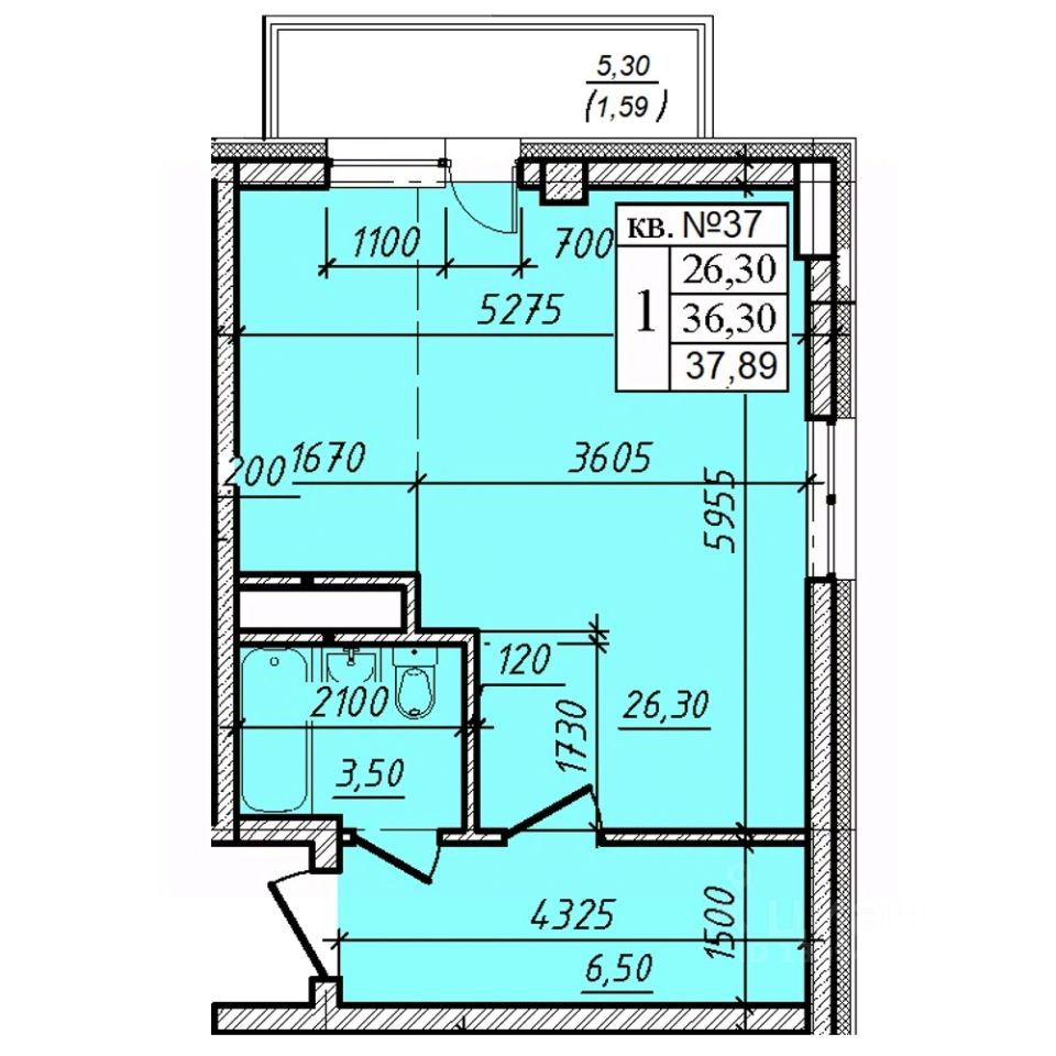
Продаётся 1-комнатная квартира в строящемся доме (Дом 1), срок сдачи: I-кв. 2028, общей площадью 37.89 кв.м., на 2 этаже. Дом на 6-й Линии - новый проект от Специализированного застройщика ''Вита на Линии''.
Просторная детская площадка с комплексами для активного отдыха и занятий спортом. При её строительстве мы используем только экологичные материалы и специальные безопасные покрытия.
Основу двора составляют озеленение, ландшафтный дизайн, тротуары и зонирование территории при помощи различных покрытий и бордюров.
В пешей доступности большая транспортная магистраль по ул. Богдана Хмельницкого, остановки с транспортными маршрутами в любую точку города - дом находится в 5 минутах от остановки ''ПО им. Баранова'', а так же достаточное количество парковочных мест.













