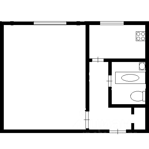
Продается 1-ая квартира на 1/5 этажного кирпичного дома(цоколь высокий). Место комфортного проживания (4-ая Рабочая). В шаговой доступности ДК ''Дружба'' библиотека, театр ''Галерка'', детские сады, школы, супермаркеты и др. учреждения. В квартире сделан капитальный ремонт (электропроводка, отопительная система, ГВС, ХВС и канализация).Потолок - бетонное перекрытие, не угловая. Один собственник. Продажа от собственника, без посредников. Рассмотрю предложения. Возможен торг.
В МКД по программе КР выполнен ремонт в МОП: Электропроводка, Цоколь, Кровля крыши. По текущему ремонту: площадка входных групп, ХВС, ГВС.



























