За объект уже внесли аванс
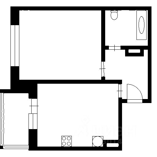
Отличная, теплая, светлая, уютная однокомнатная квартира в самом центре Левого берега!
Квартира расположена на комфортном 3-м этаже 9-ти этaжного панельного дома 1981 года постройки.
В квартире выполнен ремонт с использованием качественных материалов:
-новая проводка
-окна пвх
-натяжные потолки с точечными светильниками
-на полу качественный ламинат и современная напольная кафельная плитка
-в комнате большой встроенный шкаф-купе
-лоджия застеклена и отделана панелью пвх
-новая входная и межкомнатные двери
Просторная кухня с новым гарнитуром и техникой: холодильник, духовой шкаф, варочная поверхность, вытяжка, микроволновка.
В санузле новая сантехника. Установлена стиральная машинка и вместительный встроенный шкаф.
В квартире тепло и уютно. При продаже остается встроенная техника.
Дом оснащен новым бесшумным лифтом.
Чистый подъезд. Порядочные и дружные соседи. Придомовая территория ухоженная, летом много зелени и цветов. Всегда есть парковочные места.
Микрорайон с развитой инфраструктурой: в шаговой доступности детские сады, гимназия, детские и спортивные площадки, медицинские учреждения, магазины.
Удобная транспортная развязка. Остановка в пяти минутах ходьбы.
Продажа в связи с переездом в другой район города. Один взрослый собственник. Квартира без долгов и обременений. Подходит под ипотеку любого банка. В собственности более пяти лет. Быстрый выход на сделку.
ЗВОНИТЕ прямо сейчас!
Оперативный показ организуем.
Все документы готовы к сделке, для вас также одобрим самые выгодные ипотечные условия.55 Номер в базе: J66



























































