Риелторы не звоните! Прекрасная светлая и уютная квартира с ремонтом на Масленникова. Удачное расположение в центре, наличие нескольких школ и детских садиков поблизости, рядом вся инфраструктура, остановка под окнами дома, также удобная транспортная доступность на авто в любую точку города! Кирпичный дом, построен на совесть. Соседей никогда не услышите, стены очень толстые, не то что в новостройках!
Выполнен капитальный ремонт в едином тёплом стиле с использованием качественных материалов. В квартире после ремонта никто не проживал. Остаётся шкаф-купе и вся кухня с техникой! Всё абсолютно новое, никто не пользовался! Это приятный бонус для покупателя)
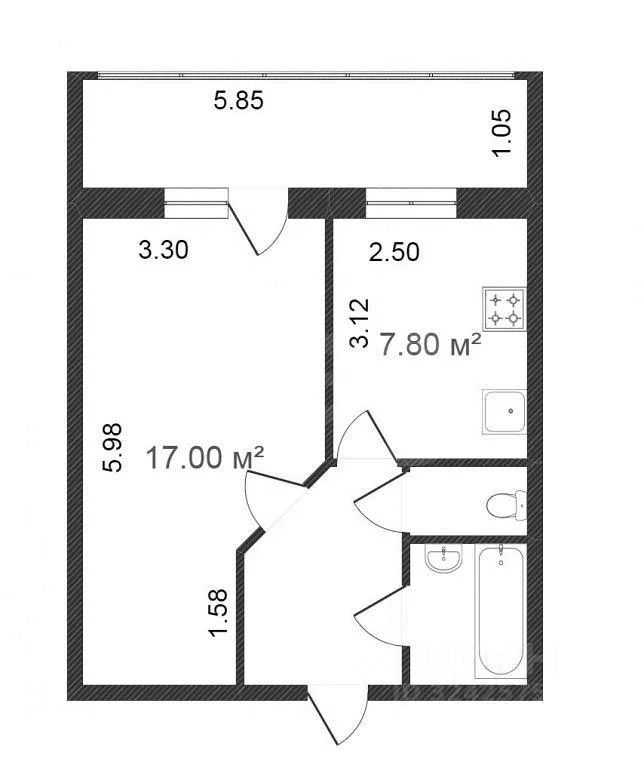
Общая площадь включая лоджию более 40 кв.м., жилая площадь 34 + 7 лоджия (очень большая лоджия на всю ширину квартиры). Прекрасный вид на город!
Документы готовы к продаже, быстрый выход на сделку. Один собственник, приобреталась за наличные по ДКП. Без долгов и обременений. Никто не прописан. Ключи отдадим на сделке.









































