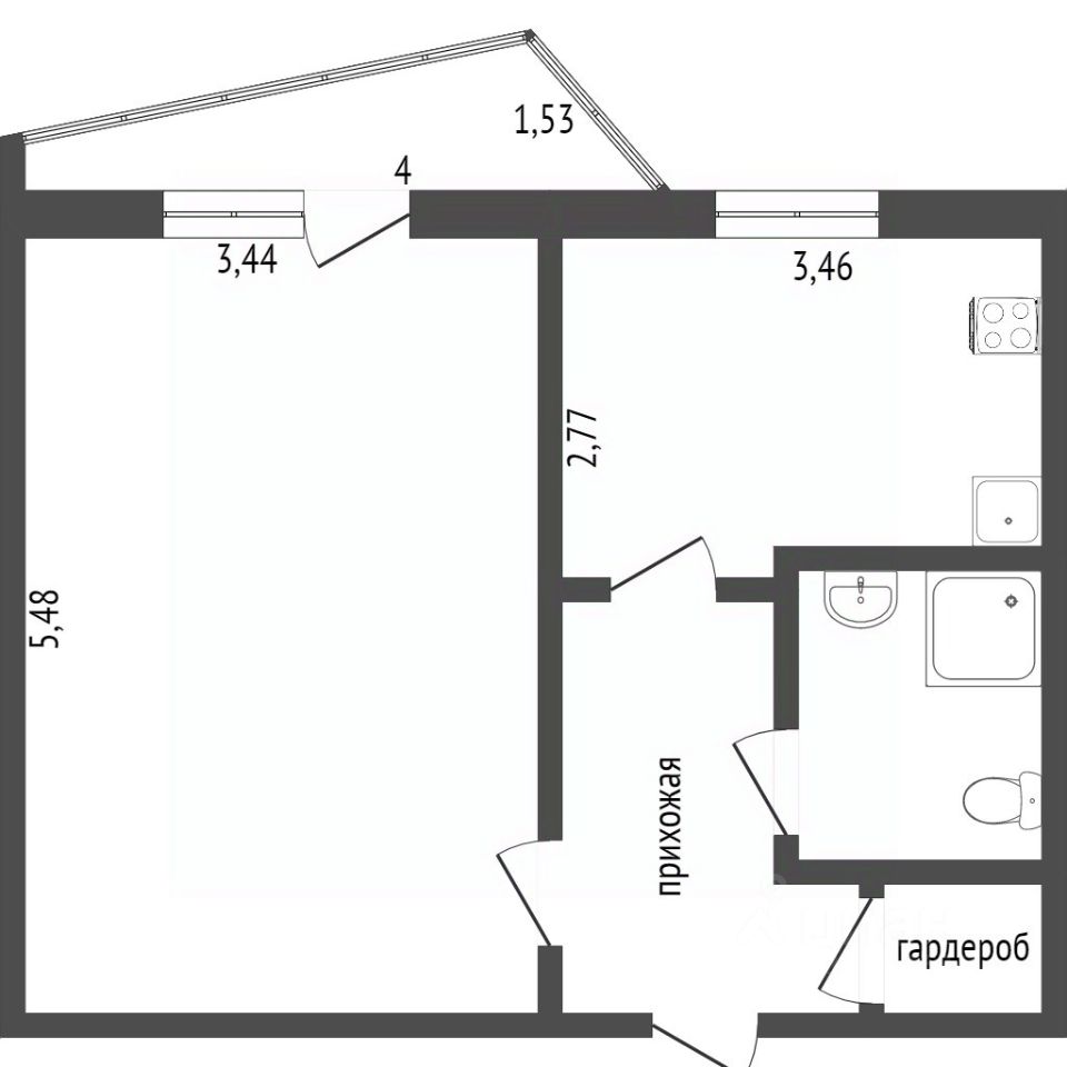
Продается уютная однокомнатная квартира на первом этаже. В квартире сделан косметический ремонт: установлены окна ПВХ, балкон застеклен, санузел выложен кафелем, натяжные потолки, новые межкомнатные двери. Замечательный вариант, Заходи и Живи. Все необходимое рядом: остановка общественного транспорта, магазины, школа, детский сад. Компания Этажи оказывает помощь в одобрении ипотеки, бесплатная консультация ипотечного брокера. Звоните, готовы показать в удобное для Вас время.
Код пользователя: 13156
Номер в базе: 4152003



































