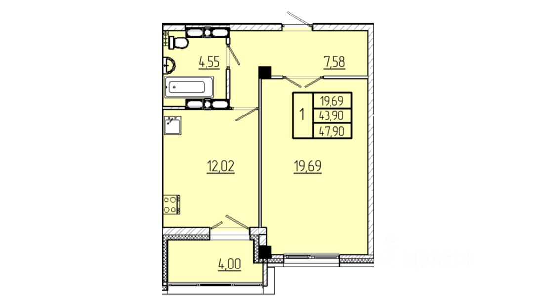
Продаётся 1-комнатная квартира в строящемся доме (Строение 3), срок сдачи: III-кв. 2026, общей площадью 47.9 кв.м., на 13 этаже.
| Этаж | 13/16 |
| Площадь общая | 47.9 м² |
| Площадь жилая | не указано |
| Площадь кухни | не указано |
| Планировка | не указано |
| Санузел | не указано |
| Балкон | нет |
| Состояние/ремонт | не указано |
| Покрытие пола | не указано |
| Материал окон | не указано |
| Входная дверь | не указано |
| Вид из окон | не указано |
| Угловая | не указано |
| Домофон | не указано |
| Счётчики воды | не указано |
| Тип дома | не указано |
| Материал дома | монолитно-кирпичный |
| Новостройка | да |
| Срок сдачи | 3-й квартал 2026 года |
| Высота потолка | 270 |
| Интернет | не указано |
| Лифт | не указано |
| Мусоропровод | не указано |
| Парковка | не указано |
Продаётся 1-комнатная квартира в строящемся доме (Строение 3), срок сдачи: III-кв. 2026, общей площадью 47.9 кв.м., на 13 этаже.
Чистая продажа
| 16 марта 2026 | 6 778 000 ₽ | -7.8%↓ | -576 000 ₽ |
| 18 февраля 2026 | 7 354 000 ₽ | -3.1%↓ | -237 000 ₽ |
| 05 февраля 2026 | 7 591 000 ₽ | +19.6%↑ | +1 241 900 ₽ |
| 16 января 2026 | 6 349 100 ₽ | -12.6%↓ | -914 300 ₽ |
| 29 декабря 2025 | 7 263 400 ₽ | +1.1%↑ | +79 400 ₽ |
| 12 ноября 2025 | 7 184 000 ₽ | +1.3%↑ | +92 600 ₽ |
| показать полностью | |||








