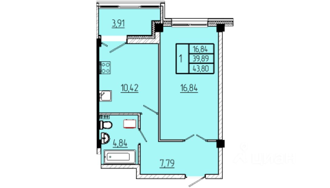
Продаётся 1-комнатная квартира в строящемся доме (Строение 3), срок сдачи: III-кв. 2026, общей площадью 43.8 кв.м., на 2 этаже.
| Этаж | 2/16 |
| Площадь общая | 43.8 м² |
| Площадь жилая | не указано |
| Площадь кухни | не указано |
| Планировка | не указано |
| Санузел | не указано |
| Балкон | нет |
| Состояние/ремонт | не указано |
| Покрытие пола | не указано |
| Материал окон | не указано |
| Входная дверь | не указано |
| Вид из окон | не указано |
| Угловая | не указано |
| Домофон | не указано |
| Счётчики воды | не указано |
| Тип дома | не указано |
| Материал дома | монолитно-кирпичный |
| Новостройка | да |
| Срок сдачи | 3-й квартал 2026 года |
| Высота потолка | 270 |
| Интернет | не указано |
| Лифт | не указано |
| Мусоропровод | не указано |
| Парковка | не указано |
Продаётся 1-комнатная квартира в строящемся доме (Строение 3), срок сдачи: III-кв. 2026, общей площадью 43.8 кв.м., на 2 этаже.
Чистая продажа
| 16 января 2026 | 6 199 900 ₽ | -12.6%↓ | -892 800 ₽ |
| показать полностью | |||








