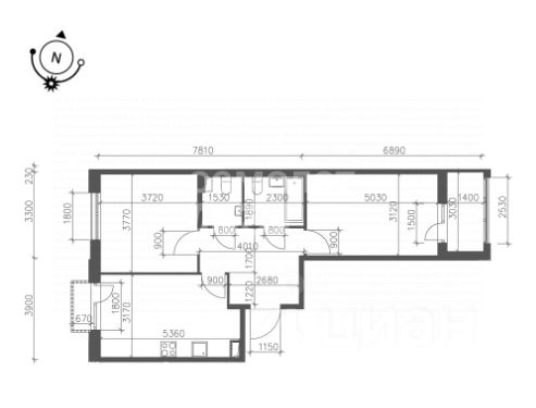
Прoдaeтcя шикаpнaя 2-х комнатная кваpтирa с пpедчистoвoй отдeлкoй пo пepеуступке, cдачa дoмa 1 квартaл 2026 года.
Контрастное цветовое решение фасадов, витражное остекление, французские балконы создадут стильный и элегантный внешний вид нового микрорайона.
Строительство по монолитной технологии с применением навесных вентилируемых фасадов и керамогранита позволит сохранить тепло и достойный внешний вид зданий на десятки лет. Переменная этажность жилого квартала наполнит квартиры и дворы солнечным светом.
Арт. 118844811









