Компания недвижимости ''Ключники'' предлагает к покупке 2-комнатную квартиру в Ленинском районе.
СРОК ГОТОВНОСТИ КВАРТИРЫ 4 НЕДЕЛИ!
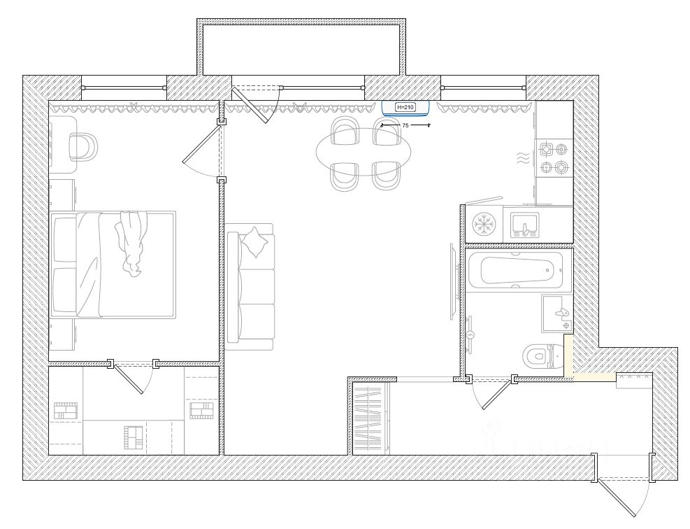
Удобная планировка включает в себя просторную кухню-гостиную, спальню с вместительной гардеробной, совмещенный санузел, балкон, прихожую.
Ремонт с заменой всех коммуникаций: заменена электропроводка, радиаторы отопления, канализация, водопроводные трубы, идеально выровнены стены, новая стяжка пола, установлены приборы учета.
Квартира оборудована всей необходимой мебелью и техникой, всё, что на фото остается новым собственникам - современный кухонный гарнитур с варочной поверхностью, вытяжка, духовой шкаф, холодильник, стиральная машина, встроенные шкафы , современные светильники, шторы, диван, обеденная зона, элементы декора.
Дом расположен в районе с развитой инфраструктурой. В пешей доступности все необходимое: остановка общественного транспорта, магазины, аптеки, сетевые супермаркеты, детские сады и школы, Иртышская Набережная, кинотеатр Галактика, Ленинский рынок, стадион Авангард.
Все документы готовы к сделке и прошли юридическую экспертизу.
Без обременений.
Один совершеннолетний собственник.
Мы гарантируем безопасное и комфортное сопровождение сделки. Если вы хотите купить новую квартиру и у вас есть старая, то мы можем взять вашу недвижимость, в счет оплаты за новую, по системе trade-in.Вам нужна ипотека? Наши партнеры - ведущие банки Омска, поэтому мы оформляем ипотеку по сниженным ставкам сразу в нескольких банках, что значительно экономит ваше время и деньги.
Звоните!
Ключники, компания Вашей недвижимости.























