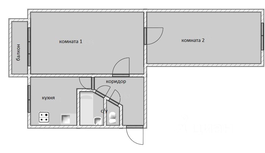
Квартира в хорошем состоянии, не угловая, комнаты смежные, но можно разделить кладовкой, просторная кухня, окна ПВХ, санузел разделен, балкон застеклен. Квартира очень теплая, светлая, расположение запад-восток. Дом расположен в районе развитой инфраструктуры, в шаговой доступности расположен детский сад 344, школа 48, взрослая поликлиника, магазины, ТЦ ''Тара'', ''Созвездие'', прогулочная аллея, остановка общественного транспорта ''20-я Линия''.





























