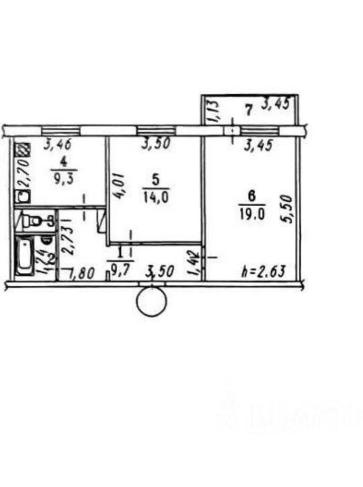
Продается просторная 2комнатная квартира с изолированными комнатами, не угловая. Дом 2015 года постройки. Выполнен ремонт. Балкон застеклен, установлены межкомнатные и входная двери. Квартира светлая, теплая. Подъезд чистый, соседи хорошие. Район развит. В шаговой доступности: школа, детские сады, магазины, поликлиники, почтовое отделение, множество торговых павильонов. Продажа от собственника, риелторов просьба не беспокоить!















































