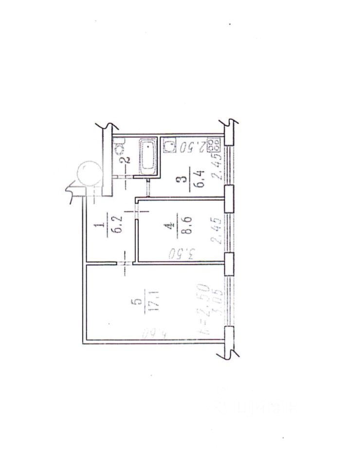
Продается уютная двухкомнатная квартира общей площадью 42 кв.м. Квартира находится на первом этаже пятиэтажного панельного дома. Жилая площадь составляет 25.7 кв.м, а кухня 6.4 кв.м. Высота потолков 2.5 метра.
В квартире сделан косметический ремонт, что позволяет вам сразу заехать и жить. Изолированные комнаты и удобная планировка создают атмосферу комфорта и уюта. Совмещенный санузел оснащен всем необходимым для вашего удобства. Окна выходят на улицу, поэтому в квартире всегда светло и тепло.
В шаговой доступности есть все необходимое для комфортной жизни: школы, детские сады, клиники и магазины. Отличная транспортная доступность позволяет быстро добраться до любой части города.
При продаже остаётся кухонный гарнитур, шкаф и тумба под телевизор в зале, кондиционер, мебель в прихожей .
Квартира продается по договору купли-продажи. Возможна ипотека, материнский капитал и любые сертификаты. Юридически чистая сделка, все документы готовы к оформлению. Без обременений и ограничений.
Приглашаем вас на просмотр! Записывайтесь заранее, чтобы не упустить шанс стать счастливым обладателем этой замечательной квартиры.



















