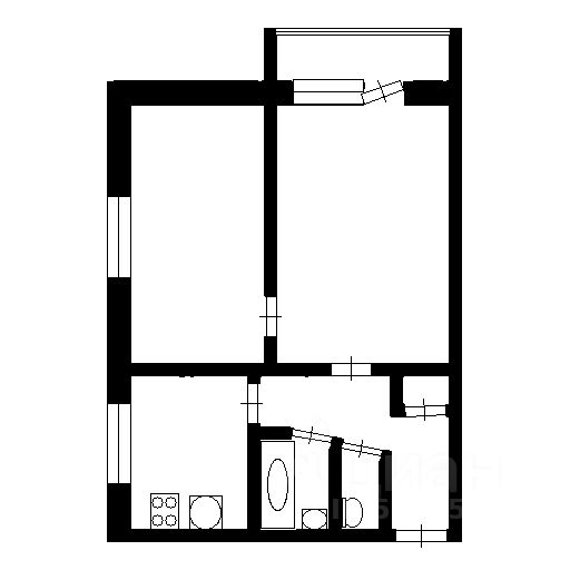
На продаже 2-х комнатная квартира в Старом Кировске по улице Авиагородок в кирпичном доме, комнаты изолированные, с хорошим ремонтом -''заходи и живи''. Натяжные потолки, окна ПВХ, балкон обшит ПВХ, заменены все трубы сантехники и отопления на современные, установлены счетчики.
Чистый подъезд, доброжелательные соседи. Во дворе детская площадка. Удобное место с развитой инфраструктурой. В шаговой доступности школы, детские сады, супермаркеты, ТК Алладин, салоны красоты, всё что нужно для комфортного проживания!
Покажем в любое удобное для вас время. Реальному покупателю торг!





























