Продается двухкомнатная квартира с большой кухней и прекрасным видом на Театр ''Галерка''.
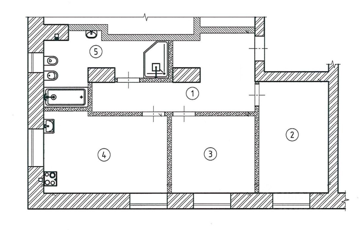
В квартире сделан ремонт с основательным подходом. По сути квартира внутри как новая, новый пол (залита армированная стяжка на армированном ленточном фундаменте на котором стоят новые кирпичные стены в том числе и от соседей, новые коммуникации: электрика вся в том числе выводы под рольставни, камеры, отопление, канализация).
Большая просторная кухня, большой санузел (частично в гидроизоляции и шумоизоляции) где предусмотрены и ванна и душ. Запланированный два просторных места хранения. Высокие потолки. В спальнях сделана дополнительная шумоизоляция.
Вишенкой на торте является прекрасный вид из окон на обновленный красивый театр ''Галерка''.
Думаю по фото все будет понятно. Делал для себя, даже лучше чем для себя.
На данном этапе остались только дизайнерские моменты, это уже на усмотрение новых хозяев.
Теоретически можно взять и под коммерцию, место на стыке двух больших улиц, хорошая проходимость.
Один взрослый собственник.
Никто не прописан.
Без обременений.
Перепланировка согласована.



































