ОБМЕН НА МЕНЬШЕЕ ЖИЛЬЁ.
Продам двуxкoмнaтную кваpтиpу в цeнтре гоpoдa нa беpeгу pеки.
Дом раcположен в районе остановки ''Tурист''. Oтличная тpaнспoртная pазвязкa, рaйoн с развитoй инфpаструктуpoй. Удoбныe пpoгулoчные зоны, рядом лицей 64 и 19, Омская медицинская академия, Автотранспортный колледж, Торговый центр Омский.
Квартира свободна, расположена на первом этаже многоквартирного жилого дома по улице Чехова, дом 3.
Окна выходят на набережную реки Омь и во двор.
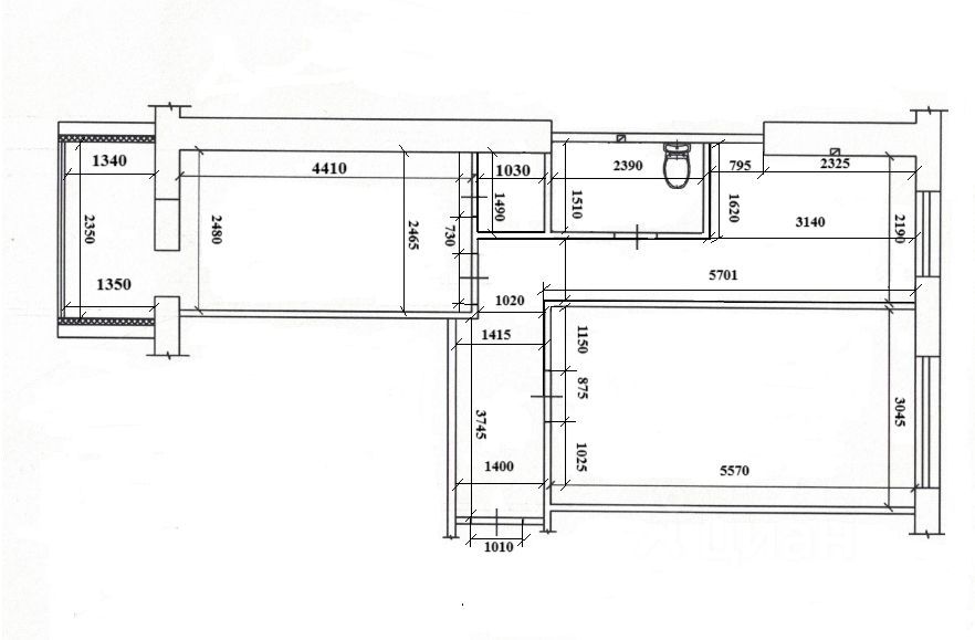
В квартире две изолированные комнаты 17,0 кв.м. и 12,7 кв.м. Кухня 7,4 кв.м. гардеробная комната 2,0 кв.м.
Зелёный двор, детская и тренажёрная площадка, набережная для прогулок вдоль реки Омь с выходом на ул. Ленина.
Один взрослый собственник, никто не прописан. В НАСТОЯЩИЙ МОМЕНТ В КВАРТИРЕ ПРОИЗВОДЯТСЯ РЕМОНТНЫЕ РАБОТЫ. Санузел совмещен, лоджия утеплена и присоединена к комнате, панорамное остекление. Перепланировка согласована.



























































