Арт. 101897658 Отличная, светлая и уютная двухкомнатная квартира c изолированными комнатами!
Особенности квартиры:
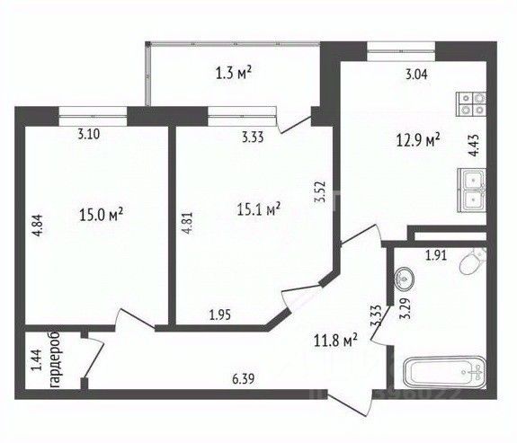
Удобная планировка включает в себя: просторную кухню (13 кв. м.), две изолированные комнаты (по 15 кв.м.), совмещенный санузел и застекленный балкон с выходом из комнаты. Есть кладовая, которую можно использовать как гардеробную Квартира солнечная и очень теплая.
Выполнен косметический ремонт: натяжные потолки, окна ПВХ, ванная комната облицована керамической плиткой, установлена сантехника и бойлер, все коммуникации заменены, имеются приборы учета, добротная входная дверь. Квартира укомплектована мебелью и техникой.
Чистый подъезд. Порядочные и дружные соседи. Для большего комфорта жильцов установлены два скоростных бесшумных лифта.
Ухоженная придомовая территория, оборудована парковкой по периметру дома, новой детской и спортивной площадками, выделенными зонами для отдыха.
Удачное месторасположение дома, есть всё необходимое для комфортной жизни. Дом находится в трёх минутах от центра города. Прекрасная транспортная доступность. В шаговой доступности детский сад 139, центр раннего развития Kids Club, частные детские сады Bambiliani и ''Умница'', лицей 54, средние школы 42, 135. Рядом расположены торговые центры Метромолл и Фестиваль, продуктовые магазины, аптеки, пункты выдачи интернет-заказов и многое другое.
Транспортная развязка очень удобная за домом остановка общественного транспорта - Строймаркет Новосел. В двух минутах ходьбы остановка 11й Микрорайон. Автомобильная развязка позволяет быстро выехать на мост и оказаться в центре города.
Квартира свободна от проживания. Один взрослый собственник. Никто не зарегистрирован. В собственности более 10 лет. Подходит под ипотеку любого банка.
ЗВОНИТЕ прямо сейчас!
Оперативный показ организуем.
Все документы готовы к сделке, для вас также одобрим самые выгодные ипотечные условия.



































