Апартаменты общей плoщадью 63 квм., на 7 этажe. Полноценная двухкоматная или евротрешка.
КОНФИГУРАЦИЯ И ТЕХНИЧЕСКАЯ ЧАСТЬ:
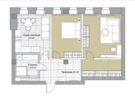
Планировочное решение предусматривает две изолированные спальни, просторную кухню объединенную с гостиной.
Дом отличного качества 2023 года постройки.
СОСТОЯНИЕ И КОМПЛЕКТАЦИЯ:
В квартире произведен качественный, дизайнерский ремонт. Износа нет. Квартира укомплектована всем необходимым для комфортного проживания.
Установлен кухонный гарнитур, укомплектованный встроенной техникой (холодильник, Варочная поверхность). Качественно обустроены системы хранения и гардероб.
Установлена металлическая входная дверь.
ИНФРАСТРУКТУРА:
Развитая инфраструктура обеспечивает комфортное проживание.
В шаговой доступности находится отличный парк с детскими площадками, плавательный бассейн, городской ипподром, почта, гимназия 62, детский сад 103.
Основная информация об объекте:
Многофункциональный комплекс ЖК Апарт-Отель Маrshаl на Жукова, расположен в центре города, и включает в себя:
- 14 этажей, 274 апартамента.
Апартаменты занимают 3-14 этажи. В здании предусмотрены 2 отдельные лифтовые зоны с грузовым и пассажирскими лифтами.
Апарт-Отель Маrshаl имеет развитую инфраструктуру первых этажей (1 и 2), в которую входят различные торгово-офисные помещения общественно-делового назначения: бизнес-центры, ресторан, лаундж-бар, салон красоты, детский сад, магазины.
ПОРЯДОК ПРОДАЖИ И ПРАВОВАЯ ЧАСТЬ:
Все документы готовы. Один собственник. Запретов, арестов, обременений нет. Чистая продажа, быстрый выход на сделку.
*Возможны: Ипотека.
*Возможен Trade-In. (осуществим выкуп вашей недвижимости за счет собственных средств для расчета за новую квартиру (или иной объект недвижимости). Сделка по продаже старой недвижимости и покупке новой проходит одновременно.















































