Квартира в Советском районе города Омска.
Отличное расположение для комфортной жизни.
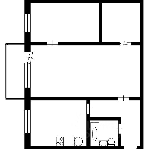
О квартире:
Выполнен хороший косметический ремонт: заменены трубы, батареи, стояки, электропроводка.
Частично остается мебель в квартире.
Просторная светлая кухня, которую легко зонировать, можно с лёгкостью разделить на зоны готовки и приема пищи.
Просторные комнаты обеспечивают комфорт и свободу передвижения.
Установлены современные пластиковые окна ПВХ, обеспечивающие отличную звукоизоляцию и теплоизоляцию.
О доме:
Чистый и ухоженный подъезд .
Доброжелательные соседи .
Наземная парковка позволяет удобно размещать автомобили вокруг дома.
Инфраструктура:
Рядом с домом расположена развитая инфраструктура, обеспечивающая комфортное проживание и доступ ко всем необходимым услугам и учреждениям.
С домом расположены два детских сада 284 и 331 и средние школы 133 и 112. Это создает благоприятные условия для семей с детьми.
Пункт выдачи заказов Валберис находится в шаговой доступности. Озон находится в этом же доме.
Продуктовые магазины (''Магнит'', ''Пятёрочка'') находятся непосредственно рядом с домом.
Аптеки: аптека ''Апрель'' расположена внутри здания, а государственная аптека — буквально через дорогу.
Спортивный комплекс ''Моя Стихия'': расположен всего в пяти минутах ходьбы через дорогу, что удобно для занятий спортом.
Ближайшая остановка в 2 минутах ходьбы от дома, есть возможность уехать в любую точку города.
Квартира свободна от обременений и готова к продаже.
Помощь в одобрении ипотеки по ставке 12.25%.
Юридическая чистота сделки гарантирована.
С радостью отвечу на ваши вопросы)
Арт. 127617841







































































