Справки собраны, готовы к быстрому выходу на сделку!
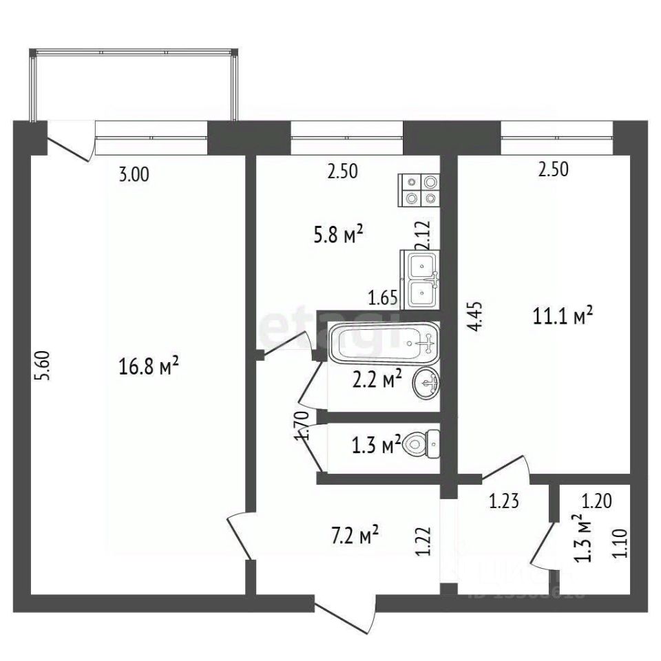
2х комнатная квартира. С удобной планировкой, комнаты изолированные. Есть зона для гардероба.
Средний подъезд, не угловая, комфортный этаж.
Чистая продажа.
Подходит под ипотеку, рассмотрим все виды сертификатов.
1 собственник, квартира без обременений, детей собственников нет.
Всё рядом, остановка, магазины.
Остались вопросы - звоните, пишите. Договоримся о просмотре
Код пользователя: 92288
Номер в базе: 10888220















































