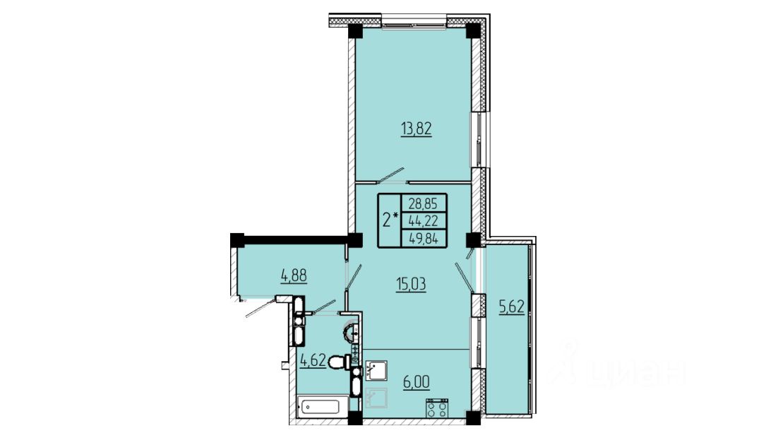
Продаётся 2-комнатная квартира в строящемся доме (Строение 3), срок сдачи: III-кв. 2026, общей площадью 49.84 кв.м., на 15 этаже.
| Этаж | 15/16 |
| Площадь общая | 49.8 м² |
| Площадь жилая | не указано |
| Площадь кухни | не указано |
| Планировка | не указано |
| Санузел | не указано |
| Балкон | нет |
| Состояние/ремонт | не указано |
| Покрытие пола | не указано |
| Материал окон | не указано |
| Входная дверь | не указано |
| Вид из окон | не указано |
| Угловая | не указано |
| Домофон | не указано |
| Счётчики воды | не указано |
| Тип дома | не указано |
| Материал дома | монолитно-кирпичный |
| Новостройка | да |
| Срок сдачи | 3-й квартал 2026 года |
| Высота потолка | 270 |
| Интернет | не указано |
| Лифт | не указано |
| Мусоропровод | не указано |
| Парковка | не указано |
Продаётся 2-комнатная квартира в строящемся доме (Строение 3), срок сдачи: III-кв. 2026, общей площадью 49.84 кв.м., на 15 этаже.
Чистая продажа
| 18 февраля 2026 | 8 452 000 ₽ | -3.1%↓ | -273 000 ₽ |
| 05 февраля 2026 | 8 725 000 ₽ | +32%↑ | +2 114 200 ₽ |
| 16 января 2026 | 6 610 800 ₽ | -12.6%↓ | -952 000 ₽ |
| 29 декабря 2025 | 7 562 800 ₽ | +1.1%↑ | +79 300 ₽ |
| показать полностью | |||








