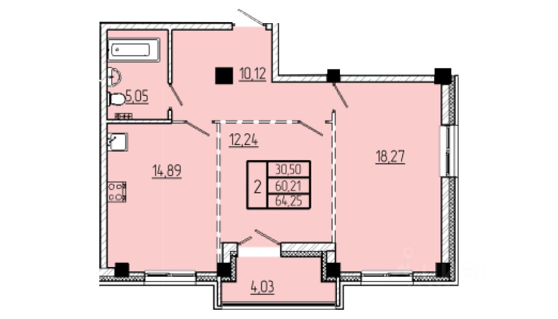
Продаётся 2-комнатная квартира в строящемся доме (Строение 3), срок сдачи: III-кв. 2026, общей площадью 64.25 кв.м., на 1 этаже.
| Этаж | 1/16 |
| Площадь общая | 64.2 м² |
| Площадь жилая | не указано |
| Площадь кухни | не указано |
| Планировка | не указано |
| Санузел | не указано |
| Балкон | нет |
| Состояние/ремонт | не указано |
| Покрытие пола | не указано |
| Материал окон | не указано |
| Входная дверь | не указано |
| Вид из окон | не указано |
| Угловая | не указано |
| Домофон | не указано |
| Счётчики воды | не указано |
| Тип дома | не указано |
| Материал дома | монолитно-кирпичный |
| Новостройка | да |
| Срок сдачи | 3-й квартал 2026 года |
| Высота потолка | 270 |
| Интернет | не указано |
| Лифт | не указано |
| Мусоропровод | не указано |
| Парковка | не указано |
Продаётся 2-комнатная квартира в строящемся доме (Строение 3), срок сдачи: III-кв. 2026, общей площадью 64.25 кв.м., на 1 этаже.
Чистая продажа
| 18 февраля 2026 | 9 780 000 ₽ | +8.5%↑ | +766 000 ₽ |
| 05 февраля 2026 | 9 014 000 ₽ | +6.6%↑ | +556 100 ₽ |
| 16 января 2026 | 8 457 900 ₽ | -12.6%↓ | -1 217 900 ₽ |
| 29 декабря 2025 | 9 675 800 ₽ | +1.1%↑ | +102 100 ₽ |
| показать полностью | |||








