Продается двух комнатная квартира в ЖК ''Золотые купола'' общей площадью 84,9 кв.м
Престижное расположение: близость к ключевым объектам инфраструктуры, культурным достопримечательностям и деловым центрам.
Рассмотрим обмен на автомобиль или квартиру с вашей доплатой.
Дом кирпичный, толщина стен 2,5 кирпича, перегородки - кирпичные.
На площадке расположено 2 квартиры.
Планировка - шикарная:
просторная кухня - 10,5 кв.м
большая гостиная - 21,7 кв.м
комнаты - 15,7 кв.м
просторный холл - 10,6 кв.м
два сан узла 4,6 кв.м и 2,4 кв.м
огромная лоджия 20 кв.м
Квартира представлена без ремонта, это дает вам возможность воплотить свои дизайнерские идеи и создать интерьер на свой вкус.
В доме 2 лифта, есть наземная парковка.
Дом находится в исторической части города.
Район с развитой инфраструктурой и прекрасной транспортной доступностью
Дом введен в эксплуатацию. Документы готовы к сделке.
Звоните/пишите! С удовольствием отвечу на все ваши вопросы.
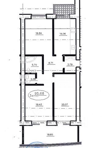
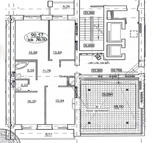
Также можем вам предложить другие планировки от 84 кв.м до 153,5 кв.м (с лоджиями террасами)
и просто уникальную и эксклюзивную квартиру-пентхаус с огромной террасой (100 кв.м)
Звоните прямо сейчас, чтобы узнать больше и забронировать просмотр!
Арт. 123840474















